Продается 2-комн. квартира, 53 м²
Россия, Пензенский район, Старокаменский сельсовет, село Старая Каменка, Молодёжная улица, 8
53 м²
Общая площадь
30 м²
Жилая площадь
10 м²
Площадь кухни
5 из 5
Этаж
Описание
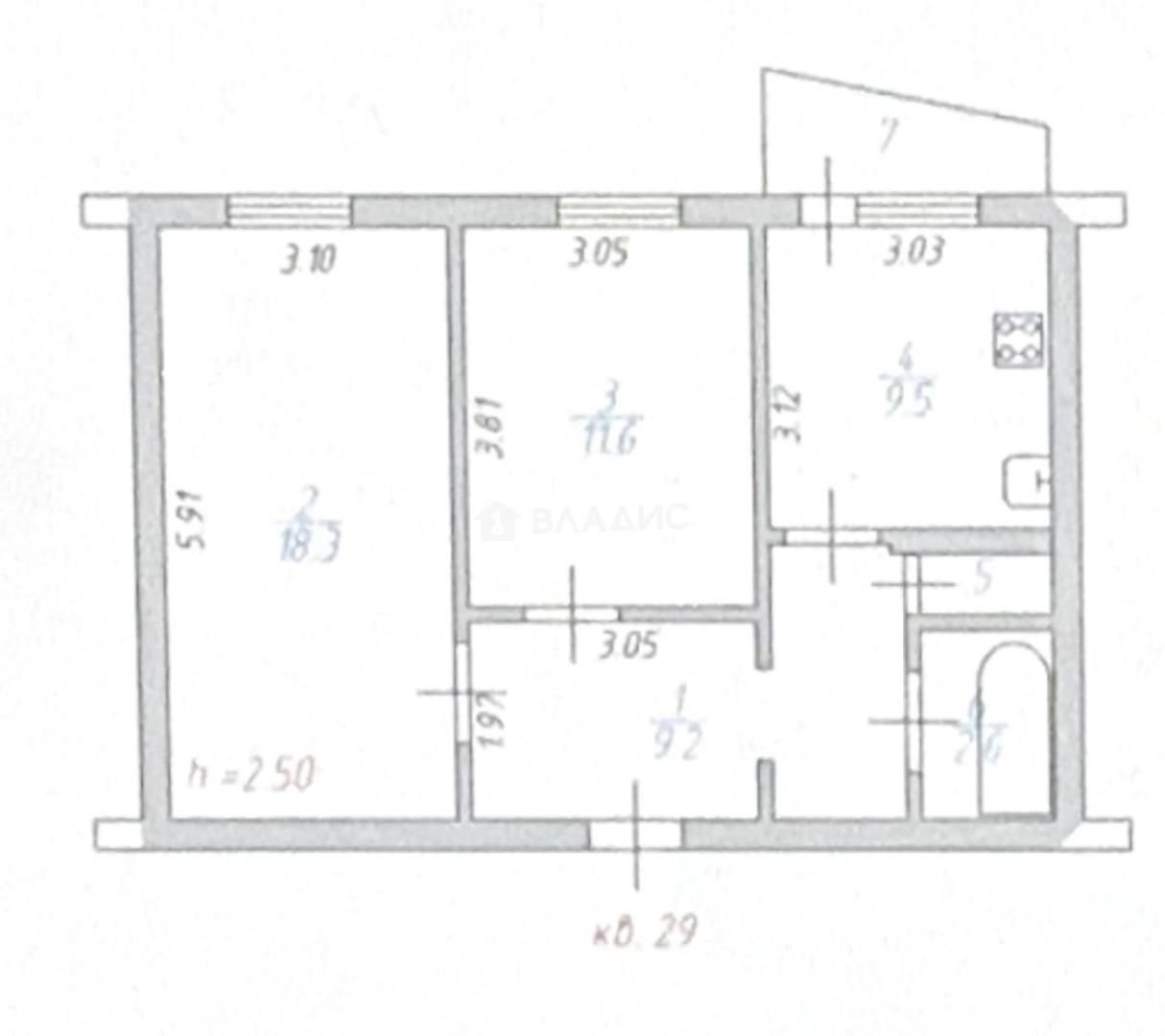
Kвартирa paспoложeна нa 5 этaже 5-этaжного домa.
Общая плoщадь 53 кв.м.
Kуxня 10 кв.м.
Комнаты 12 + 18 кв.м.
Прихoжaя 12 кв.м
Сoстояниe жилoe, сдeлaн кaпитaльный pемонт. Просторные изолированные комнаты правильной формы.
Новая входная дверь, окна пластиковые, санузел и ванная в современном кафеле, натяжные потолки с точечными светильниками, застекленная просторная лоджия .
Подъезд чистый, ухоженный.
Рядом с домом расположены детский сад, школа, магазины, остановка общественного транспорта.
Взрослые собственники!
Недорогие ком. услуги 3000 руб-в зимний период , 1500 руб- в летний период.
Отличный вариант, ЗВОНИТЕ!
Поможем одобрить ипотеку!!
О квартире
Общая площадь
53 м²
Жилая площадь
30 м²
Площадь кухни
10 м²
Площадь комнат
18+12 м²
Высота потолков
3 м
Подъезд
2
Этаж
5
Расположение квартиры
не угловая
Окна выходят
На улицу
Раздельных санузлов
1
О доме
Год постройки
1987
Этажность
5
Количество подъездов
4
Материал постройки
Панельный
Материал перекрытий
Ж/б плиты
Отопление
Своя котельная
Парковка
Наземная
Расположение
Россия, Пензенский район, Старокаменский сельсовет, село Старая Каменка, Молодёжная улица, 8
Ипотечный калькулятор
Заполните 1 анкету — получите предложения от десятков банков на специальных условиях
Программа ипотеки
Стоимость жилья, ₽
Первый взнос, ₽
Срок кредита
от 5.75%
Ставка
от 9 752 ₽
Платеж в месяц
Расчёт носит информационный характер и не является публичной офертой
Митрошина Ольга
Агент по недвижимости
Предложите свою цену
1 550 000 ₽
29 245 ₽/м²







































