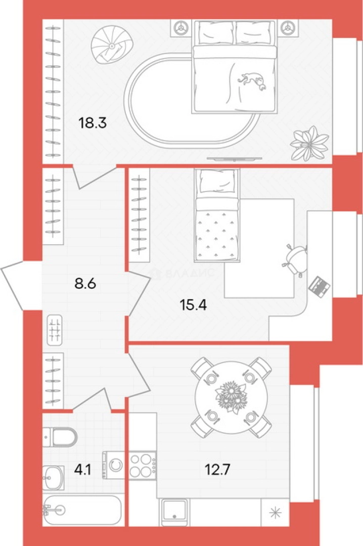
Продается 2-комн. квартира, 59.1 м²
Россия, Пензенский район, Мичуринский сельсовет, посёлок Мичуринский
59.1 м²
Общая площадь
33.7 м²
Жилая площадь
12.7 м²
Площадь кухни
3 из 10
Этаж
Описание
Крупномасштабный проект от СГ «Рисан», реализуемый в посёлке Мичуринский Пензенской области.
Входит в топ-новостроек региона 2025 года по потребительским качествам.
Основные характеристики:
Класс: комфорт
Тип домов: кирпичные, 7–10 этажей
Объём строительства: 20 домов на закрытой охраняемой территории с собственной котельной и большой наземной парковкой.
В продаже квартиры от студий до 3-комнатных.
Комфорт и инфраструктура:
Формат White Box – качественная черновая отделка: штукатурка, стяжка, проводка, надежная входная дверь — отличный финиш для вашего дизайна
Безопасность: закрытая благоустроенная территория, собственная круглосуточная охрана центра безопасности "Рисан", видеонаблюдение и противопожарная система.
Для семей: детские и спортивные площадки, двор без машин, уютные парадные с колясочными и лифтами
Локация: инфраструктура рядом — магазины, школы, детсады, 10 минут до центра города
Почему «Кантри» — это не просто жилой квартал:
Концепция проекта — загородная гармония в городской доступности.
Проект создаёт пространство для творчества, отдыха и комфортной жизни среди природы.
Плюсы:
- Гарантия качества от лидера рынка;
- Новый, «теплый» проект с разнообразными планировками;
- Успешная инфраструктура и безопасность;
- Быстрый доступ к центру и природное окружение;
- Надёжный возврат инвестиций и комфорт.
О квартире
Общая площадь
59.1 м²
Жилая площадь
33.7 м²
Площадь кухни
12.7 м²
Подъезд
3
Этаж
3
Окна выходят
На улицу
О доме
Год постройки
2027
Этажность
10
Количество подъездов
3
Материал постройки
Кирпичный
Материал перекрытий
Монолитные
Отопление
Своя котельная
Парковка
Наземная
Расположение
Россия, Пензенский район, Мичуринский сельсовет, посёлок Мичуринский
Ипотечный калькулятор
Заполните 1 анкету — получите предложения от десятков банков на специальных условиях
Программа ипотеки
Стоимость жилья, ₽
Первый взнос, ₽
Срок кредита
от 5.75%
Ставка
от 34 950 ₽
Платеж в месяц
Расчёт носит информационный характер и не является публичной офертой
Похожие объекты
2-комн. квартира, 65,1 м², 4/9 эт.
2-комн. квартира, 66,9 м², 2/9 эт.
2-комн. квартира, 65,1 м², 6/9 эт.
2-комн. квартира, 54,3 м², 8/9 эт.
Консультант по новостройкам
5 555 400 ₽
94 000 ₽/м²












