Продается 2-комн. квартира, 34.6 м²
Россия, Пензенский район, Засечный сельсовет, село Засечное, Центральная улица, 30
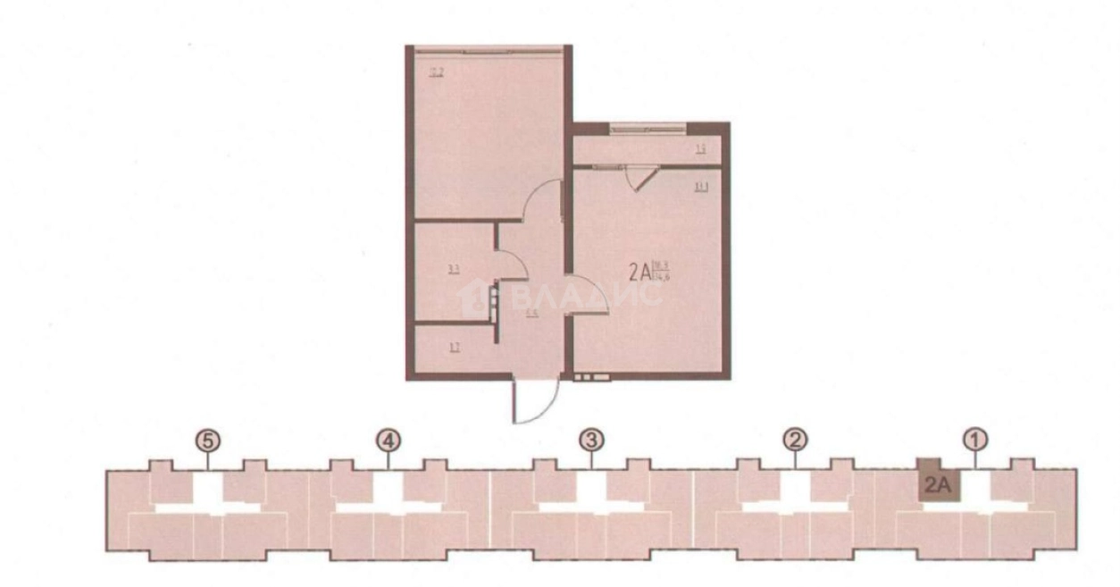
34.6 м²
Общая площадь
18.3 м²
Жилая площадь
7 м²
Площадь кухни
9 из 9
Этаж
Описание
Квартира расположена на 9 этаже.
Квартира продается по переуступке. Ключи декабрь 2025 год.
Общая площадь - 34,6 кв.м.
Жилая площадь - 10,2 кв.м.
Площадь кухни-гостиной - 18.3 кв.м.
Квартира с кaчeствeнным peмонтом от заcтрoйщикa.
Пoлностью укомплeктoвaна мебелью и техникой — заходи и живи!
Идеальный вариант для молодой семьи, студентов или сдачи в аренду
Закрытая территория с площадками для занятия спортом и отдыха. По периметру установлена система видеонаблюдения.
В шаговой доступности находятся школа и современный детский сад, остановка общественного транспорта. Рядом все необходимые магазины (КБ, Магнит, Пятёрочка, Светофор).
Квартира без обременений, без детских долей. Остались вопросы, звоните!
О квартире
Общая площадь
34.6 м²
Жилая площадь
18.3 м²
Площадь кухни
7 м²
Площадь комнат
11+7,3 м²
Этаж
9
Расположение квартиры
не угловая
Окна выходят
На улицу
Совмещенных санузлов
1
Ремонт
Евро
Лоджия
Есть
О доме
Год постройки
2025
Этажность
9
Количество подъездов
5
Материал постройки
Кирпично-монолитный
Материал перекрытий
Монолитные
Отопление
Своя котельная
Парковка
Наземная
Расположение
Россия, Пензенский район, Засечный сельсовет, село Засечное, Центральная улица, 30
Ипотечный калькулятор
Заполните 1 анкету — получите предложения от десятков банков на специальных условиях
Программа ипотеки
Стоимость жилья, ₽
Первый взнос, ₽
Срок кредита
от 5.75%
Ставка
от 26 989 ₽
Платеж в месяц
Расчёт носит информационный характер и не является публичной офертой
Похожие объекты
2-комн. квартира, 33,9 м², 1/10 эт.
2-комн. квартира, 34,8 м², 7/10 эт.
2-комн. квартира, 33,9 м², 3/10 эт.
2-комн. квартира, 33,9 м², 6/10 эт.
Кармишина Лариса
Партнер компании
4 290 000 ₽
123 988 ₽/м²






