Продается 3-комн. квартира, 81.3 м²
Россия, Пенза, жилой район Арбеково, микрорайон Дальнее Арбеково, ЖК Квартал Апгрейд Фэмили
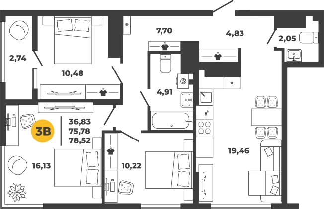
81.3 м²
Общая площадь
34 м²
Жилая площадь
20.1 м²
Площадь кухни
12 из 17
Этаж
Описание
Upgrade Family — это новый жилой комплекс от надёжного застройщика «Рисан», созданный для комфортной жизни современных семей. Концепция проекта строится вокруг главной ценности — семьи, поэтому здесь продумано всё: от планировок квартир до общественных пространств.
🌿 О локации
Комплекс расположен в развитом районе города, рядом с детскими садами, школами, торговыми центрами, ледовым дворцом и живописной набережной. В пешей доступности — вся необходимая инфраструктура для жизни и отдыха.
✨ Фишки проекта
Набережная «Лэйк Парк» — место для прогулок, спорта и отдыха у воды с пляжем, пирсом, серф-кафе и самым большим в Поволжье вейк-парком.
Спортивный кластер — площадки для стритбола, воркаута, силовых тренировок и групповых занятий.
Прогулочный бульвар — зелёное пространство с перголами, качелями, амфитеатром и арт-объектами.
Двор без машин с детскими площадками для разных возрастов, озеленением и видами на воду.
Фитнес-клуб и лаундж-зоны прямо на территории.
🏙 Архитектура и квартиры
Архитектура комплекса выделяется современными фасадами с широкоформатными окнами до 2,5 м, видовыми лоджиями и архитектурной подсветкой.
Квартиры продуманы до мелочей: мастер-спальни с гардеробными, прачечные, просторные кухни-гостиные. Планировки от студий 33 м² до трёхкомнатных 92 м².
🚗 Комфорт для жизни
Подземный отапливаемый паркинг на 74 машиноместа.
Кладовые помещения для хранения.
Современные холлы с дизайнерским оформлением и виртуальным консьержем 24/7.
Система безопасности нового поколения и приложение для управления сервисами.
📌 Upgrade Family 3 — это не просто дом, а настоящая экосистема для жизни, где семья, уют и активность объединяются в одном пространстве.
О квартире
Общая площадь
81.3 м²
Жилая площадь
34 м²
Площадь кухни
20.1 м²
Подъезд
6
Этаж
12
Окна выходят
На улицу
О доме
Год постройки
2027
Этажность
17
Количество подъездов
6
Материал постройки
Кирпично-монолитный
Материал перекрытий
Монолитные
Отопление
Центральное
Парковка
Подземная
Расположение
Россия, Пенза, жилой район Арбеково, микрорайон Дальнее Арбеково, ЖК Квартал Апгрейд Фэмили
Ипотечный калькулятор
Заполните 1 анкету — получите предложения от десятков банков на специальных условиях
Программа ипотеки
Стоимость жилья, ₽
Первый взнос, ₽
Срок кредита
от 5.75%
Ставка
от 58 307 ₽
Платеж в месяц
Расчёт носит информационный характер и не является публичной офертой
Похожие объекты







3-комн. квартира, 87,5 м², 19/22 эт.







3-комн. квартира, 87,5 м², 20/22 эт.







3-комн. квартира, 73,2 м², 21/22 эт.







3-комн. квартира, 87,5 м², 16/22 эт.
Консультант по новостройкам
9 268 200 ₽
114 000 ₽/м²






