3-комн. квартира · 87.6 pм² · 6/10 эт.
Россия, Пензенский район, Мичуринский сельсовет, посёлок Мичуринский, жилой комплекс Кантри
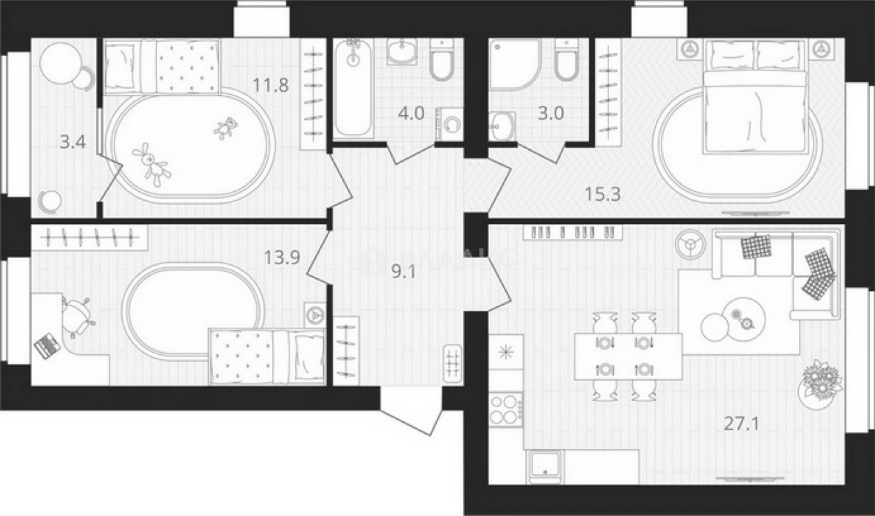
87.6 м²
Общая площадь
41 м²
Жилая площадь
27.1 м²
Площадь кухни
6 из 10
Этаж
Описание
Новый масштабный проект от Рисан расположится в Тепличном. Это будет 20 кирпичных домов с частной закрытой территорией, площадью Событий и Досуг-центром только для жителей.
О квартире
Общая площадь
87.6 м²
Жилая площадь
41 м²
Площадь кухни
27.1 м²
Подъезд
3
Этаж
6
Окна выходят
На улицу
О доме
Год постройки
2026
Этажность
10
Количество подъездов
3
Материал постройки
Кирпичный
Материал перекрытий
Ж/б плиты
Отопление
Своя котельная
Пассажирских лифтов
1
Парковка
Наземная
Расположение
Россия, Пензенский район, Мичуринский сельсовет, посёлок Мичуринский, жилой комплекс Кантри
Ипотечный калькулятор
Заполните 1 анкету — получите предложения от десятков банков на специальных условиях
Программа ипотеки
Стоимость жилья, ₽
Первый взнос, ₽
Срок кредита
от 5.75%
Ставка
от 51 253 ₽
Платеж в месяц
Расчёт носит информационный характер и не является публичной офертой
Похожие объекты






3-комн. квартира, 87,6 м², 7/10 эт.






3-комн. квартира, 85,2 м², 10/10 эт.






3-комн. квартира, 87,6 м², 8/10 эт.






3-комн. квартира, 79 м², 5/10 эт.
Консультант по новостройкам
8 146 800 ₽
93 000 ₽/м²







