Продается Здание, 570 м²
Россия, Пермь, микрорайон Голый Мыс, Больничная улица, 12
570 м²
Общая площадь
Отдельный
Вход в помещение
Свободный
Доступ в помещение
1 из 2
Этаж
Описание
Коммерческий объект имеет удобную планировку и может стать отличной инвестицией. Здание готово к эксплуатации без дополнительных крупных вложений. Может использоваться как готовый арендный бизнес.
На сегодняшний день в здании заканчивается капитальный ремонт, произведена и согласована перепланировка.
Согласованы и выполнены все нормы пожарной безопасности, сделаны общие санузлы и душевые.
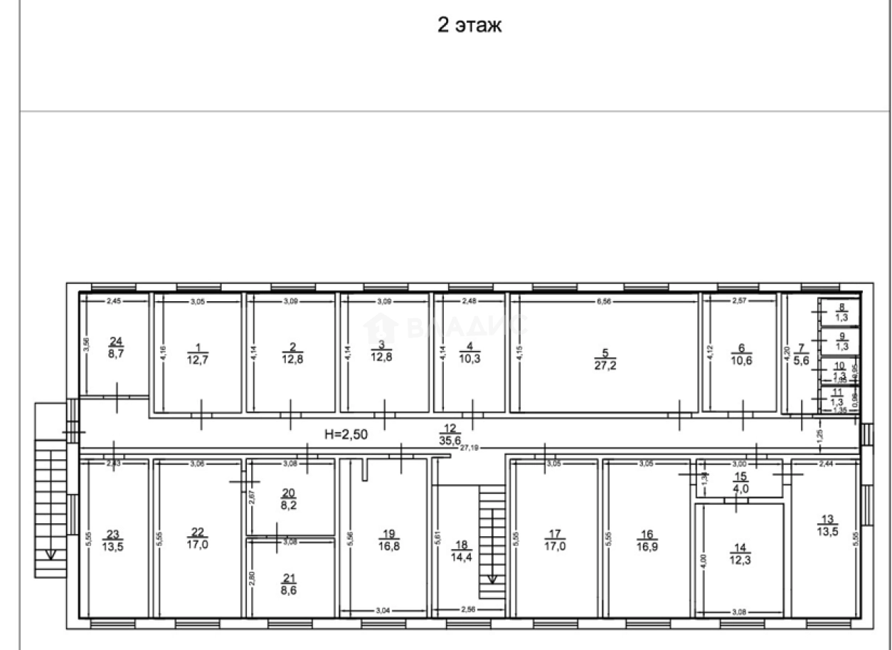
На втором этаже расположены и уже отремонтированы жилые комнаты для сотрудников. Будут установлены (и останутся) двуярусные кровати
На первом этаже предполагались офисные помещения, которые легко переоборудовать так же в комнаты для проживания.
В здании проведена полностью новая электрика. Своя газовая котельная,что позволяет экономить на коммунальных платежах.
Расположение в микрорайоне Голый Мыс обеспечивает хорошую транспортную доступность на личном и общественном транспорте (авт №5) и позволяет быстро добраться до центра города и отдаленных районов по объездной дороге.
Здание расположено на земельном участке 9,7 соток (договор аренды , с возможностью выкупа)
Мы гарантируем безопасную сделку и юридическую поддержку нашим Клиентам. Позвоните нам прямо сейчас, чтобы узнать больше о коммерческом объекте.
Об объекте
Общая площадь
570 м²
Этаж
1
Высота потолков
2.5 м
Электрическая мощность
160 кВт
Раздельных санузлов
4
Ремонт
Косметический
Вход в помещение
Отдельный
Доступ в помещение
Свободный
Удобства
Вентиляция
Мебель
Пожарная сигнализация
О здании
Тип коммерции
Отдельное здание
Год постройки
1982
Материал постройки
Панельный
Отопление
Центральное
Этажей в доме
2
Парковка
Наземная
Расположение
Россия, Пермь, микрорайон Голый Мыс, Больничная улица, 12
Ипотечный калькулятор
Заполните 1 анкету — получите предложения от десятков банков на специальных условиях
Программа ипотеки
Стоимость жилья, ₽
Первый взнос, ₽
Срок кредита
от 5.75%
Ставка
от 113 240 ₽
Платеж в месяц
Расчёт носит информационный характер и не является публичной офертой
Предложите свою цену
18 000 000 ₽
31 579 ₽/м²













