Продается 2-комн. квартира, 44.2 м²
Россия, Республика Карелия, Петрозаводск, улица Репникова, 21Б
44.2 м²
Общая площадь
27.8 м²
Жилая площадь
5.9 м²
Площадь кухни
5 из 5
Этаж
Описание
2-комнатная квартира, по адресу: г. Петрозаводск, ул. Peпникoвa 21Б
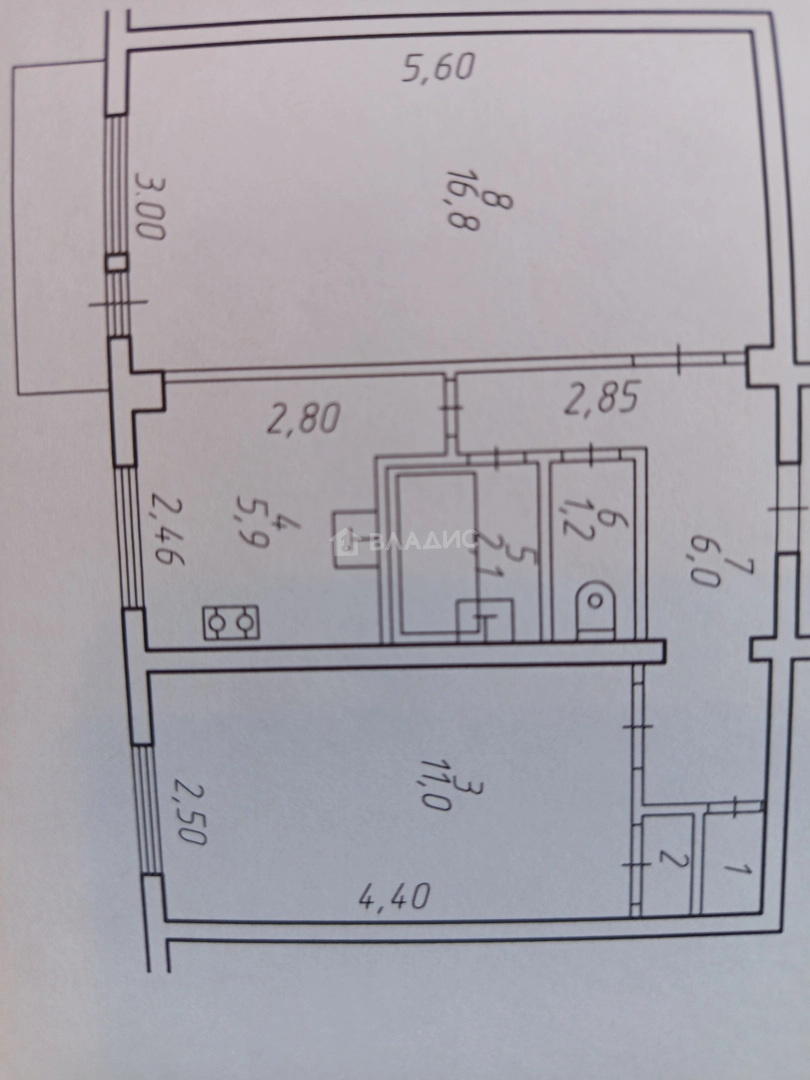
Общая площадь квартиры - 44,2 м.кв.
Жилые комнаты: 16 м.кв, 11.4 м.кв, и Kуxня 5.9 м.кв. Балкон 4,37м.кв.(не входит в общую площадь).
Оцените преимущества:
- комнаты раздельные, отделены друг от друга кухней
- в квартире выполнен качественный ремонт из дорогих материалов
- балкон остеклен
- низкие коммунальные платежи - природный газ
- спокойные соседи
- ухоженная придомовая территория.
Квартира без долгов и обременений. Дом расположен в стороне от дорог, красивый вид из окон.
Новым покупателям остаётся кухонный гарнитур, ванная комната, часть мебели.
Рассмотрим вариант ОБМЕНА на 2-х комнатную квартиру на Древлянке с доплатой.
В шаговой доступности располагается вся необходимая инфраструктура: школа, д/сады, магазины, аптеки, остановки общественного транспорта( троллейбус 4,6,7; автобусы 17, 26, 9, 10, 5), 4 поликлиника, Бассейн "Газпром".
Через дорогу парк с родниковой водой.
Звоните прямо сейчас!
- Любая форма оплаты: наличные, ипотека, сертификаты.
- Полное юридическое сопровождение и безопасность.
О квартире
Общая площадь
44.2 м²
Жилая площадь
27.8 м²
Площадь кухни
5.9 м²
Площадь комнат
16.8+11 м²
Этаж
5
Расположение квартиры
не угловая
Окна выходят
Во двор
Раздельных санузлов
1
Мебель
Да
Ремонт
Косметический
О доме
Год постройки
1975
Этажность
5
Материал постройки
Панельный
Материал перекрытий
Ж/б плиты
Отопление
Центральное
Парковка
Наземная
Расположение
Россия, Республика Карелия, Петрозаводск, улица Репникова, 21Б
Ипотечный калькулятор
Заполните 1 анкету — получите предложения от десятков банков на специальных условиях
Программа ипотеки
Стоимость жилья, ₽
Первый взнос, ₽
Срок кредита
от 5.75%
Ставка
от 27 046 ₽
Платеж в месяц
Расчёт носит информационный характер и не является публичной офертой
Похожие объекты






Студия, 41,1 м², 1/3 эт.

















2-комн. квартира, 45,3 м², 4/5 эт.
Золотая Ирина
Старший эксперт по недвижимости
Предложите свою цену
4 299 000 ₽
97 262 ₽/м²













































































