Продается 1-комн. квартира, 39.45 м²
Россия, Московская область, Подольск, микрорайон Климовск, Школьная улица, 41
Бунинская аллея
30 мин.
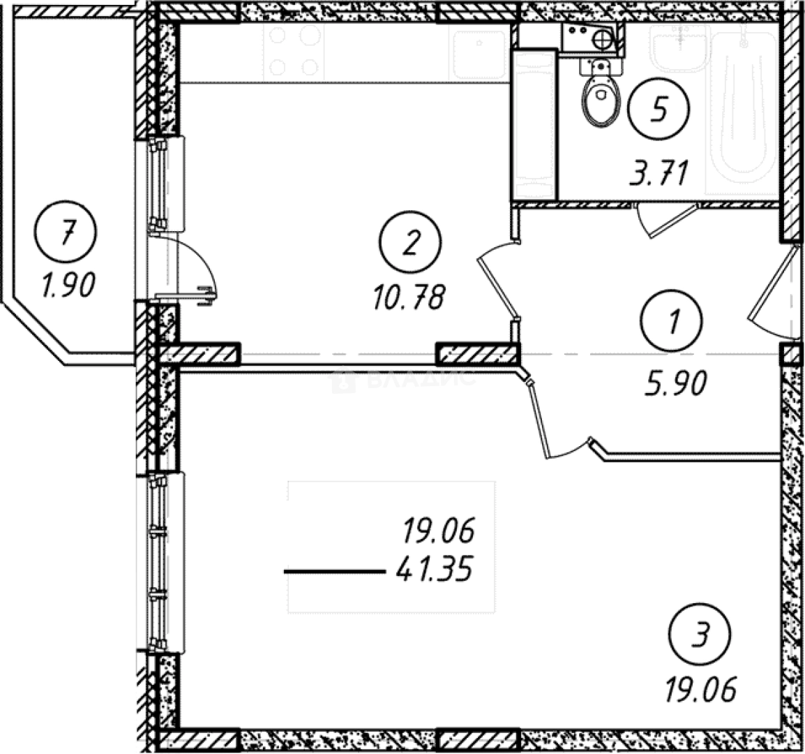
39.45 м²
Общая площадь
19.06 м²
Жилая площадь
10.78 м²
Площадь кухни
12 из 17
Этаж
Описание
В проекте представлены 1-комнатные и 2х-комнатные планировочные решения. Все лоты сдаются без отделки с высотой потолков 2,7 метра.
Для семейного отдыха на территории комплекса имеется благоустроенный двор с детскими и спортивными площадками. Для владельцев автомобилей предусмотрена открытая стоянка.
Жилой комплекс «Школьный» расположен в районе с развитой инфраструктурой — в пешей доступности детские сады и школы, спортивные комплексы и торговые центры, медицинские учреждения, парки, кафе и рестораны. От МКАД Климовск удален на 21 километр. До метро «Подольск» 20 минут транспортом.
О квартире
Общая площадь
39.45 м²
Жилая площадь
19.06 м²
Площадь кухни
10.78 м²
Площадь комнат
19.06 м²
Высота потолков
2.7 м
Подъезд
1
Этаж
12
Окна выходят
На улицу
О доме
Год постройки
2026
Этажность
17
Количество подъездов
2
Материал постройки
Кирпично-монолитный
Материал перекрытий
Монолитные
Отопление
Центральное
Пассажирских лифтов
1
Парковка
Наземная
Расположение
Россия, Московская область, Подольск, микрорайон Климовск, Школьная улица, 41
Бунинская аллея
30 мин.
Ипотечный калькулятор
Заполните 1 анкету — получите предложения от десятков банков на специальных условиях
Программа ипотеки
Стоимость жилья, ₽
Первый взнос, ₽
Срок кредита
от 5.75%
Ставка
от 37 340 ₽
Платеж в месяц
Расчёт носит информационный характер и не является публичной офертой
Похожие объекты


1-комн. квартира, 39,5 м², 16/17 эт.
Бунинская аллея
30 мин.



1-комн. квартира, 39,5 м², 17/17 эт.
Бунинская аллея
30 мин.


1-комн. квартира, 39,5 м², 5/17 эт.
Бунинская аллея
30 мин.


1-комн. квартира, 39,5 м², 10/17 эт.
Бунинская аллея
30 мин.
Консультант по новостройкам
5 935 379 ₽
150 454 ₽/м²


