Купить дом на улице Октябрьская в Приморском крае
Россия, Приморский край, Уссурийский городской округ, село Воздвиженка, Октябрьская улица, 95А
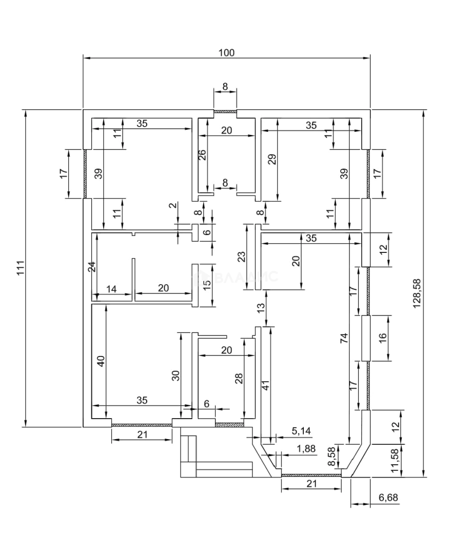
102 м²
Площадь дома
10 сот
Площадь участка
Газобетонный блок
Материал постройки
1
Этажей
Описание
Дом построен в 2025 году из газоблока. Высота потолков — 3 метра.
В доме три комнаты и просторная кухня гостиная. Такой вариант отлично подойдёт для большой семьи. Коммуникации участка включают электричество, водоснабжение и канализацию (септик). Отопление осуществляется с помощью индивидуального котла, теплый пол водяной, на весь внутренний периметр дома 101 км. метр, а водоснабжение — из скважины.
Материал кровли — мягкая черепица.
Подъезд к участку — грунтовка.
Дом подходит для круглогодичного проживания. На участке в 10 соток можно разбить сад или огород, поставить баню и гараж, а также сделать дополнительную зону отдыха.
Дом, с ремонтом в стиле white box, цена 9000000,
дом с внутренней отделкой и коммуникациями, без внешней отделки 8000000.
Не упустите свой шанс стать владельцем этого уютного дома! Мы гарантируем безопасную сделку и юридическую поддержку нашим Клиентам.
Подходит под все виды ипотек
Все интересующие вопросы по телефону
О доме
Год постройки
2025
Этажей в доме
1
Общая площадь
102 м²
Жилая площадь
65 м²
Площадь кухни
25 м²
Площадь комнат
15+20+30 м²
Материал постройки
Газобетонный блок
Материал перекрытий
Деревянные
Материал кровли
Мягкая черепица
Высота потолков
3 м
Об участке
Площадь участка
10 сот.
Статус участка
Индивидуальное жилищное строительство
Электричество
Есть
Водоснабжение
Есть
Канализация
Есть
Без благоустройства участка
Есть
Подъезд к участку
Грунтовка
Расположение
Россия, Приморский край, Уссурийский городской округ, село Воздвиженка, Октябрьская улица, 95А
Ипотечный калькулятор
Заполните 1 анкету — получите предложения от десятков банков на специальных условиях
Программа ипотеки
Стоимость жилья, ₽
Первый взнос, ₽
Срок кредита
от 5.75%
Ставка
от 49 700 ₽
Платеж в месяц
Расчёт носит информационный характер и не является публичной офертой
Предложите свою цену
7 900 000 ₽
77 451 ₽/м²






















