Продается 3-комн. квартира, 51.7 м²
Россия, Приморский край, село Черниговка, Октябрьская улица, 67А
51.7 м²
Общая площадь
40 м²
Жилая площадь
6 м²
Площадь кухни
5 из 5
Этаж
Описание
Квартира находится по адресу: Россия, Приморский край, село Черниговка, Октябрьская улица, 67А. Это идеальный вариант для тех, кто ищет комфортное жильё в тихом и спокойном месте.
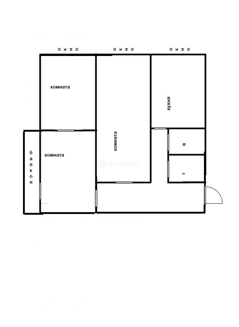
Квартира расположена на пятом этаже пятиэтажного дома, общая площадь составляет 51,7 кв. м, из которых жилая — 40 кв. м. Кухня площадью 6 кв. м позволит вам с комфортом готовить любимые блюда. Высота потолков — 2,8 м. Все комнаты изолированы, окна выходят на улицу. В квартире есть личная парковка около дома.
Не упустите свой шанс стать обладателем этой замечательной квартиры! Мы гарантируем безопасную сделку и юридическую поддержку нашим клиентам.
Звоните прямо сейчас, чтобы узнать больше информации и назначить просмотр!
О квартире
Общая площадь
51.7 м²
Жилая площадь
40 м²
Площадь кухни
6 м²
Площадь комнат
20 м²
Высота потолков
2.8 м
Этаж
5
Расположение квартиры
угловая
Окна выходят
На улицу
Раздельных санузлов
2
Ремонт
Старый ремонт
О доме
Год постройки
1975
Этажность
5
Количество подъездов
4
Материал постройки
Кирпичный
Материал перекрытий
Монолитные
Отопление
Центральное
Расположение
Россия, Приморский край, село Черниговка, Октябрьская улица, 67А
Ипотечный калькулятор
Заполните 1 анкету — получите предложения от десятков банков на специальных условиях
Программа ипотеки
Стоимость жилья, ₽
Первый взнос, ₽
Срок кредита
от 5.75%
Ставка
от 26 423 ₽
Платеж в месяц
Расчёт носит информационный характер и не является публичной офертой
Предложите свою цену
4 200 000 ₽
81 238 ₽/м²


















