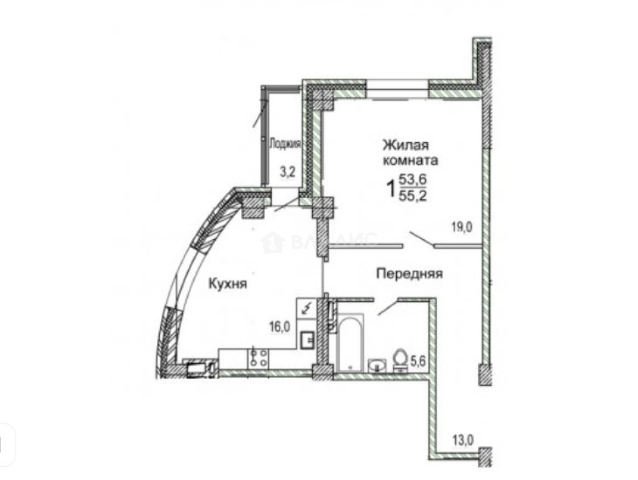
Продается 1-комн. квартира, 55.2 м²
Россия, Приморский край, Владивостокский городской округ, посёлок Трудовое, улица Мандельштама, 7к2
55.2 м²
Общая площадь
2 из 22
Этаж
Описание
Новый ЖК - это комплексная застройка территории поселка Трудовое, к востоку от трассы М-60, площадью 400 гектаров. С севера участка протекает река Песчаная, до г. Артем расстояние примерно 1 км. С юга земельные участки ограничены лесом, гористой местностью, участками СНТ "Синяя Сопка", с запада - малоэтажной застройкой поселка и садовыми участками, с востока - лесом и гористой местностью. В настоящее время все необходимые социальные объекты расположены с запада от трассы М-60.
Микрарйон рассчитан на строительство 600 тыс. кв. м жилья, из которых 90% будут эконом класса, и проживание около 10 тысяч семей. С одной стороны микрорайон будет огибать новая трасса, которая свяжет Владивосток и Находку, а с другой - М-60. Планируется постройка транспортных развязок, которые обеспечат возможность добираться до Владивостока за несколько минут.
Проектом предусмотрено строительство домов различной этажности и индивидуальных домов. В 24-этажных домах запроектированы однокомнатные квартиры площадью 44-61 кв.м, двухкомнатные квартиры 74 кв.м.
Рядом предусмотрены парковки, площадки для отдыха детей и взрослых.
При строительстве ЖК рациональный подход позволил, максимально сохранить зеленые насаждения, и создать полосы озеленения. Разработан бизнес план по графику строительства, что позволило соблюсти единое видение планировки всей территории и подойти к проектированию застройки в комплексе, начиная от проектирования инженерных сетей, дорог, общеобразовательных учреждений.
Основными критериями при разработке концепции было создание здоровой, безопасной и комфортной среды обитания для будущих жильцов.
Для удобства жителей и гостей ЖК проектом предусмотрено строительство: 9 детских садов, отвечающих всем современным требованиям; 4 школы; детского цента для дополнительного образования детей района; торговых центров и других объектов социального назначения.
Относительная удаленность от трассы М-60 и отсутствие производственных территорий, соседство с лесными массивами делает земельные участки привлекательными для проживания и предусматривает некую обособленность.
Большое внимание уделено активному отдыху будущих жителей, предусмотрен парк с зоной отдыха детей и взрослых, велосипедные дорожки, спортивные площадки и другие спортивные сооружения. Вдоль реки Песчаная и ручьев будут организованы набережные с прогулочными дорожками.
Развитая сеть дорог позволит быстро добраться не только до любого уголка возводимого микрорайона, но и до Владивостока и Артема. Для безопасности участников дорожного движения, на дорогах районного и городского значения, между полосами движения предусмотрены разделительные полосы с зелеными насаждениями.
Можно дозаказать отделку White Box 17 000 за кв/м.
О квартире
Общая площадь
55.2 м²
Этаж
2
Окна выходят
На улицу
О доме
Год постройки
2023
Этажность
22
Количество подъездов
1
Материал постройки
Монолитный
Материал перекрытий
Монолитные
Отопление
Электрическое
Парковка
Наземная
Расположение
Россия, Приморский край, Владивостокский городской округ, посёлок Трудовое, улица Мандельштама, 7к2
Ипотечный калькулятор
Заполните 1 анкету — получите предложения от десятков банков на специальных условиях
Программа ипотеки
Стоимость жилья, ₽
Первый взнос, ₽
Срок кредита
от 5.75%
Ставка
от 36 464 ₽
Платеж в месяц
Расчёт носит информационный характер и не является публичной офертой
Похожие объекты


1-комн. квартира, 58 м², 7/22 эт.


1-комн. квартира, 62,3 м², 14/22 эт.


1-комн. квартира, 62,3 м², 13/22 эт.


1-комн. квартира, 55,3 м², 4/22 эт.
Консультант по новостройкам
5 796 000 ₽
105 000 ₽/м²








