Продается 1-комн. квартира, 51.06 м²
Россия, Приморский край, Надеждинский район, посёлок Новый, ЖК ДНС Сити
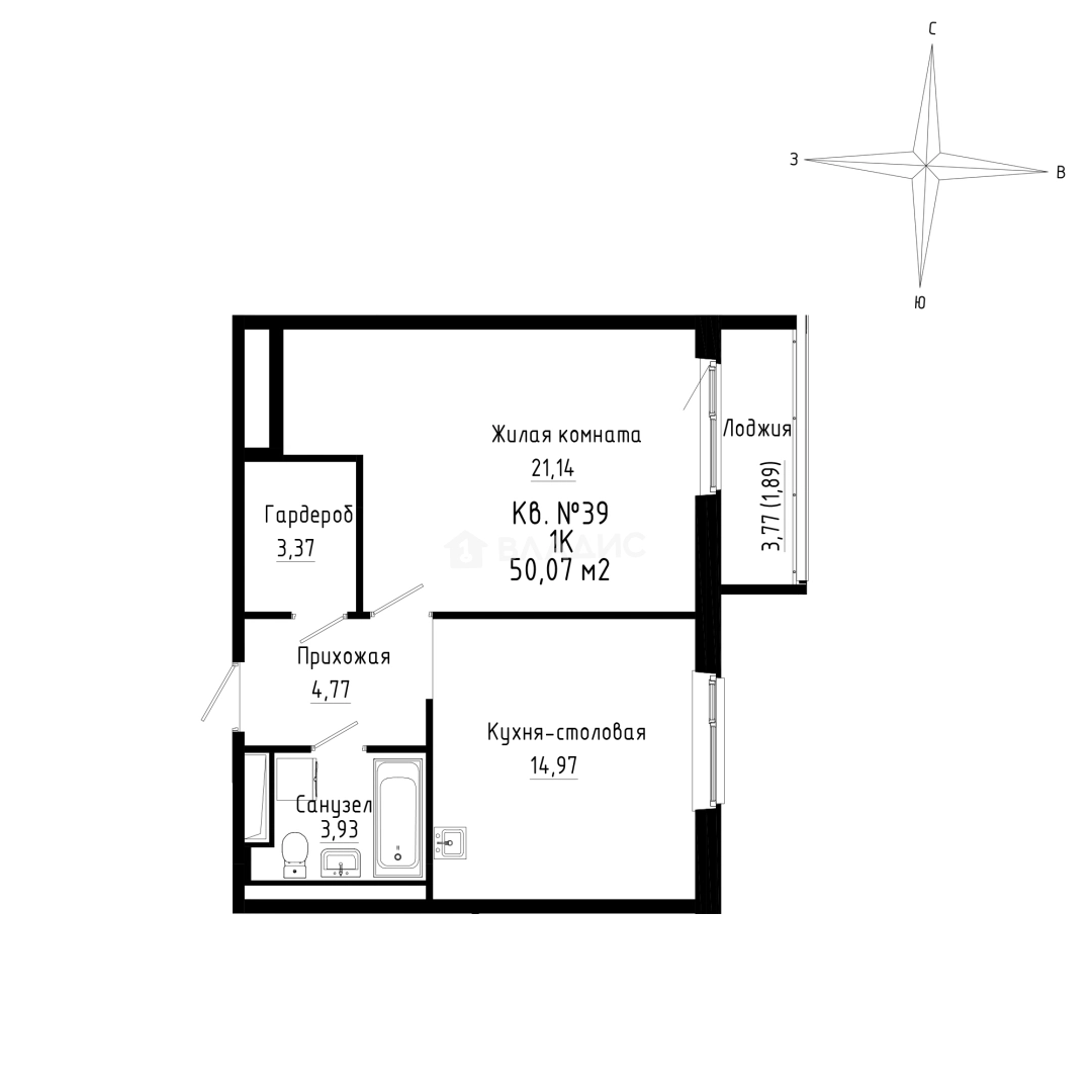
51.06 м²
Общая площадь
14.97 м²
Площадь кухни
9 из 10
Этаж
Описание
Строительство ведется на площадке города-спутника Владивостока. Здесь создают современную городскую среду, наполненную всем необходимым для комфортной жизни, создания семьи, работы и бизнеса, личностного развития и отдыха в гармонии с природой.
Один из основополагающих подходов в концепции комплекса — экологичность: сохранение и приумножение природного актива территории. Кольцевой эко-бульвар по внешнему периметру проекта протяженностью 3,5 км и междворовое эко-пространство площадью в 1,5 Га вписаны естественный ландшафт с сохранением местных растений и деревьев.
В домах будут сквозные подъезды. Можно выйти на улицу или в закрытый двор. Прозрачные светлые входные группы дополняют концепцию безопасной среды: вы видите, что происходит внутри. Вход в подъезд расположен на уровне земли. Это удобно для мам с колясками, детям с самокатами, людям преклонного возраста. На входе в каждый подъезд установлены умные домофоны, которыми можно управлять через приложение на смартфоне. На экране вы увидите, кто пришёл, и сможете открыть дверь. Для курьеров и гостей можно генерировать разовые коды, чтобы звонок домофона не разбудил ребенка во время дневного сна. Для вашего комфорта в период дождей и в холодное время года, домофоны установлены в теплых тамбурах.
В просторном холле каждого подъезда выполнен дизайнерский ремонт. Создана уютная зона ожидания с удобной и стильной мебелью. На первом этаже оборудован санузел и лапомойка для питомцев. Предусмотрены специальные зоны для временного хранения детских колясок и небольшого спортивного инвентаря.
Закрытый двор без машин – приватное безопасное пространство для вас и ваших детей. Вход на территорию ограждён забором, войти через калитку могут только жители по ключ-карте. Можно спокойно отпускать ребенка гулять во дворе одного, а за безопасностью следить из окна или по камерам видеонаблюдения со смартфона. Еще лучше выходить на прогулку всей семьей: вас ждут зоны тихого отдыха и плейхабы из натурального дерева, воркаут-тренажеры. Атмосферу уюта во дворе дополняет авторское озеленение.
В первом квартале запроектирована площадка для выгула собак с тренажерами, где владельцы смогут тренировать питомцев и общаться друг с другом.
Коммерческие помещения: салон и студия красоты, продуктовый мини-маркет, аптека, два кафе, одно из которых со своей пекарней, зоомагазин, фитнес-центр, магазин напитков, строительный магазин. Перечень магазинов и повседневных услуг будет непрерывно расширяться.
О квартире
Общая площадь
51.06 м²
Площадь кухни
14.97 м²
Подъезд
1
Этаж
9
Окна выходят
На улицу
О доме
Год постройки
2026
Этажность
10
Количество подъездов
2
Материал постройки
Железобетонные панели
Материал перекрытий
Ж/б плиты
Отопление
Электрическое
Парковка
Наземная
Расположение
Россия, Приморский край, Надеждинский район, посёлок Новый, ЖК ДНС Сити
Ипотечный калькулятор
Заполните 1 анкету — получите предложения от десятков банков на специальных условиях
Программа ипотеки
Стоимость жилья, ₽
Первый взнос, ₽
Срок кредита
от 5.75%
Ставка
от 55 304 ₽
Платеж в месяц
Расчёт носит информационный характер и не является публичной офертой
Похожие объекты














1-комн. квартира, 44,0 м², 1/6 эт.
2-комн. квартира, 44,0 м², 10/12 эт.



































1-комн. квартира, 43,9 м², 3/10 эт.




















3-комн. квартира, 57,7 м², 3/8 эт.
Консультант по новостройкам
8 790 800 ₽
172 167 ₽/м²




































