Продается 3-комн. квартира, 55.4 м²
Россия, Московская область, Пушкино, микрорайон Новое Пушкино, к21
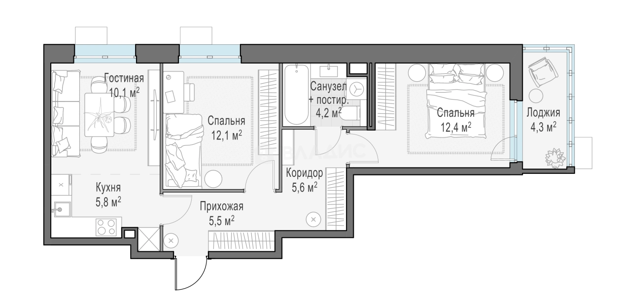
55.4 м²
Общая площадь
34.5 м²
Жилая площадь
5.7 м²
Площадь кухни
10 из 15
Этаж
Описание
Покупателям квартир в ЖК «Новое Пушкино» предложено множество планировочных решений: в наличии квартиры, как классического типа, так и европланировки. Квартиры сдаются с чистовой, подчистовой и без отделки.
Проект включает в себя три детских сада, три школы и поликлинику. Также предусмотрены спортивный комплекс и торгово-развлекательный центр. Архитектурное расположение домов образует закрытый двор от машин и случайных прохожих. Для автовладельцев предусмотрены наземные и подземные паркинги. На придомовой территории находятся детские и спортивные площадки, пешеходные дорожки и места для отдыха. На первых этажах предусмотрены коммерческие помещения.
ЖК «Новое Пушкино» возводится в Подмосковном городе Пушкино. В шаговой доступности расположены школа, детские сады и торговые комплексы. Метро «Бабушкинская» в 50 минутах транспортом, выезд на МКАД — в 21 км.
О квартире
Общая площадь
55.4 м²
Жилая площадь
34.5 м²
Площадь кухни
5.7 м²
Площадь комнат
12.05+12.38 м²
Высота потолков
2.74 м
Подъезд
2
Этаж
10
Окна выходят
На улицу
О доме
Год постройки
2025
Этажность
15
Количество подъездов
5
Материал постройки
Кирпично-монолитный
Материал перекрытий
Монолитные
Отопление
Центральное
Пассажирских лифтов
1
Грузовых лифтов
1
Парковка
Наземная
Расположение
Россия, Московская область, Пушкино, микрорайон Новое Пушкино, к21
Ипотечный калькулятор
Заполните 1 анкету — получите предложения от десятков банков на специальных условиях
Программа ипотеки
Стоимость жилья, ₽
Первый взнос, ₽
Срок кредита
от 5.75%
Ставка
от 78 639 ₽
Платеж в месяц
Расчёт носит информационный характер и не является публичной офертой
Похожие объекты















3-комн. квартира, 63,2 м², 5/17 эт.















2-комн. квартира, 61,1 м², 5/17 эт.















2-комн. квартира, 52,3 м², 14/17 эт.














2-комн. квартира, 56,5 м², 10/17 эт.
Консультант по новостройкам
12 500 000 ₽
225 632 ₽/м²

























