Продается 2-комн. квартира, 41.89 м²
Россия, Московская область, Пушкино, жилой комплекс Публицист
Медведково
29 мин.
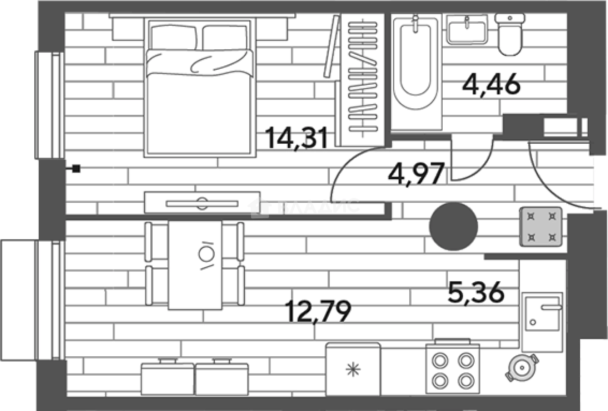
41.89 м²
Общая площадь
14.31 м²
Жилая площадь
18.15 м²
Площадь кухни
8 из 12
Этаж
Описание
В жилом комплексе предложен широкий выбор планировочных решений от студий до трехкомнатных квартир европейского формата с просторной кухней-гостиной. Есть квартиры с двумя санузлами и квартиры с балконами. На верхних этажах расположены квартиры с потолками 3 метра. В наличии квартиры как без отделки, так и с готовой чистовой отделкой.
На территории квартала выполнено благоустройство дворов с всесезонным озеленением, многоуровневым ландшафтом и арт-объектами. В зеленых дворах комплекса есть зоны для отдыха, игровые площадки для детей разных возрастов, спортивные площадки, зоны для йоги и воркаута, столы для настольного тенниса и площадки для выгула собак. Комплекс имеет собственную рекреационная зону в лесу с прогулочными и беговыми маршрутами. На территории квартала есть вся необходимая инфраструктура: поликлиника рассчитанная на 432 посещения в смену, 5 детских садов по 300 мест каждый 2 школы по 1650 мест, культурно-досуговый центр, отделения почтовой связи, филиалы банков, МФЦ, автомойки. Первые этажи домов занимают коммерческие помещения. Для владельцев автомобилей предусмотрены 7 многоуровневых паркингов, 14 подземных паркингов и гостевые машино-места.
Квартал расположен в городе Пушкино, с хорошо развитой социальной инфраструктурой: рядом открыты десятки детских садов и школ, работают вузы, поликлиники, магазины и кафе, спортивные и торговые центры. До центра Москвы от квартала всего 30 километров, до МКАД — 14 километров. До Москвы можно доехать на машине или автобусе по Ярославскому шоссе. В городе есть несколько ж/д станций, откуда легко добраться до Ярославского вокзала.
О квартире
Общая площадь
41.89 м²
Жилая площадь
14.31 м²
Площадь кухни
18.15 м²
Площадь комнат
14.31 м²
Высота потолков
2.75 м
Подъезд
1
Этаж
8
Окна выходят
На улицу
О доме
Год постройки
2026
Этажность
12
Количество подъездов
3
Материал постройки
Кирпично-монолитный
Материал перекрытий
Монолитные
Отопление
Центральное
Пассажирских лифтов
1
Грузовых лифтов
1
Парковка
Подземная
Расположение
Россия, Московская область, Пушкино, жилой комплекс Публицист
Медведково
29 мин.
Ипотечный калькулятор
Заполните 1 анкету — получите предложения от десятков банков на специальных условиях
Программа ипотеки
Стоимость жилья, ₽
Первый взнос, ₽
Срок кредита
от 5.75%
Ставка
от 33 751 ₽
Платеж в месяц
Расчёт носит информационный характер и не является публичной офертой
Похожие объекты











2-комн. квартира, 38,8 м², 4/12 эт.
Медведково
29 мин.











2-комн. квартира, 42,1 м², 3/12 эт.
Медведково
29 мин.











2-комн. квартира, 38,6 м², 10/12 эт.
Медведково
29 мин.











2-комн. квартира, 41,9 м², 5/12 эт.
Медведково
29 мин.
Консультант по новостройкам
5 364 852 ₽
128 070 ₽/м²












