Продается 2-комн. квартира, 50.8 м²
Россия, Московская область, Пушкино, микрорайон Новое Пушкино, жилой комплекс Новое Пушкино, к20
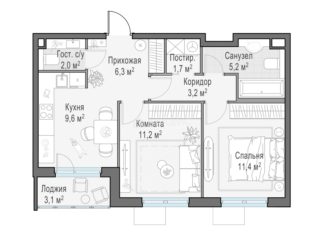
50.8 м²
Общая площадь
25.3 м²
Жилая площадь
10.2 м²
Площадь кухни
13 из 15
Этаж
Описание
Покупателям квартир в ЖК «Новое Пушкино» предложено множество планировочных решений: в наличии квартиры, как классического типа, так и европланировки. Квартиры сдаются с чистовой, подчистовой и без отделки.
Проект включает в себя три детских сада, три школы и поликлинику. Также предусмотрены спортивный комплекс и торгово-развлекательный центр. Архитектурное расположение домов образует закрытый двор от машин и случайных прохожих. Для автовладельцев предусмотрены наземные и подземные паркинги. На придомовой территории находятся детские и спортивные площадки, пешеходные дорожки и места для отдыха. На первых этажах предусмотрены коммерческие помещения.
ЖК «Новое Пушкино» возводится в Подмосковном городе Пушкино. В шаговой доступности расположены школа, детские сады и торговые комплексы. Метро «Бабушкинская» в 50 минутах транспортом, выезд на МКАД — в 21 км.
О квартире
Общая площадь
50.8 м²
Жилая площадь
25.3 м²
Площадь кухни
10.2 м²
Подъезд
6
Этаж
13
Окна выходят
На улицу
О доме
Год постройки
2025
Этажность
15
Количество подъездов
7
Материал постройки
Кирпично-монолитный
Материал перекрытий
Монолитные
Отопление
Центральное
Парковка
Наземная
Расположение
Россия, Московская область, Пушкино, микрорайон Новое Пушкино, жилой комплекс Новое Пушкино, к20
Ипотечный калькулятор
Заполните 1 анкету — получите предложения от десятков банков на специальных условиях
Программа ипотеки
Стоимость жилья, ₽
Первый взнос, ₽
Срок кредита
от 5.75%
Ставка
от 55 802 ₽
Платеж в месяц
Расчёт носит информационный характер и не является публичной офертой
Похожие объекты















1-комн. квартира, 43,6 м², 5/17 эт.











1-комн. квартира, 43,6 м², 3/17 эт.














2-комн. квартира, 48,2 м², 6/17 эт.
Консультант по новостройкам
8 870 000 ₽
174 607 ₽/м²



























