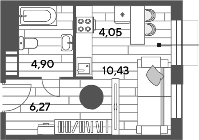
Продается Студия, 23.3 м²
Россия, Московская область, Пушкино, микрорайон Новое Пушкино, к23
23.3 м²
Общая площадь
10.4 м²
Жилая площадь
5.6 м²
Площадь кухни
6 из 14
Этаж
Описание
Покупателям квартир в ЖК «Новое Пушкино» предложено множество планировочных решений: в наличии квартиры, как классического типа, так и европланировки. Квартиры сдаются с чистовой, подчистовой и без отделки.
Проект включает в себя три детских сада, три школы и поликлинику. Также предусмотрены спортивный комплекс и торгово-развлекательный центр. Архитектурное расположение домов образует закрытый двор от машин и случайных прохожих. Для автовладельцев предусмотрены наземные и подземные паркинги. На придомовой территории находятся детские и спортивные площадки, пешеходные дорожки и места для отдыха. На первых этажах предусмотрены коммерческие помещения.
ЖК «Новое Пушкино» возводится в Подмосковном городе Пушкино. В шаговой доступности расположены школа, детские сады и торговые комплексы. Метро «Бабушкинская» в 50 минутах транспортом, выезд на МКАД — в 21 км.
О квартире
Общая площадь
23.3 м²
Жилая площадь
10.4 м²
Площадь кухни
5.6 м²
Подъезд
3
Этаж
6
Окна выходят
На улицу
О доме
Год постройки
2025
Этажность
14
Количество подъездов
5
Материал постройки
Кирпично-монолитный
Материал перекрытий
Монолитные
Отопление
Центральное
Парковка
Наземная
Расположение
Россия, Московская область, Пушкино, микрорайон Новое Пушкино, к23
Ипотечный калькулятор
Заполните 1 анкету — получите предложения от десятков банков на специальных условиях
Программа ипотеки
Стоимость жилья, ₽
Первый взнос, ₽
Срок кредита
от 5.75%
Ставка
от 32 651 ₽
Платеж в месяц
Расчёт носит информационный характер и не является публичной офертой
Похожие объекты










Студия, 25,9 м², 3/14 эт.











Студия, 23,3 м², 6/14 эт.











Студия, 21,7 м², 15/15 эт.
Медведково
29 мин.











Студия, 21,5 м², 5/15 эт.
Медведково
29 мин.
Консультант по новостройкам
5 190 000 ₽
222 747 ₽/м²























