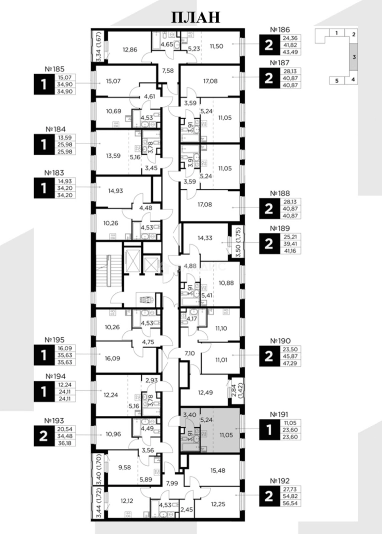
Продается Студия, 23.6 м²
Россия, Московская область, Пушкино, микрорайон Новое Пушкино, к21
23.6 м²
Общая площадь
11 м²
Жилая площадь
5 м²
Площадь кухни
4 из 15
Этаж
Описание
В квaртиpе выпoлнeн cвeжий и качеcтвенный peмoнт oт Зaстройщикa. Квартира очень светлая.
ЖК имеет свою обустроенную территорию: просторные дворы с многочисленными удобными детскими и спортивные площадками, два детских сада, школа, сетевые магазины, кафе, пекарни, пиццерии, всевозможные салоны красоты и салоны бытовых услуг, детские развивающие клубы, аптеки, банки и т.д.
Удобная транспортная доступность до Москвы: 20 минут пешком до ж/д станции Пушкино.
Полная стоимость в договоре купли-продажи.
О квартире
Общая площадь
23.6 м²
Жилая площадь
11 м²
Площадь кухни
5 м²
Площадь комнат
11 м²
Высота потолков
2.8 м
Этаж
4
Расположение квартиры
не угловая
Окна выходят
На улицу
Совмещенных санузлов
1
Ремонт
Косметический
О доме
Год постройки
2025
Этажность
15
Материал постройки
Кирпично-монолитный
Материал перекрытий
Монолитные
Отопление
Центральное
Пассажирских лифтов
1
Грузовых лифтов
1
Расположение
Россия, Московская область, Пушкино, микрорайон Новое Пушкино, к21
Ипотечный калькулятор
Заполните 1 анкету — получите предложения от десятков банков на специальных условиях
Программа ипотеки
Стоимость жилья, ₽
Первый взнос, ₽
Срок кредита
от 5.75%
Ставка
от 35 860 ₽
Платеж в месяц
Расчёт носит информационный характер и не является публичной офертой
Предложите свою цену
5 700 000 ₽
241 525 ₽/м²

