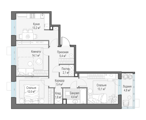
Продается 3-комн. квартира, 71.3 м²
Россия, Московская область, Пушкино, микрорайон Новое Пушкино, к21
71.3 м²
Общая площадь
39.2 м²
Жилая площадь
13.2 м²
Площадь кухни
14 из 15
Этаж
Описание
Покупателям квартир в ЖК «Новое Пушкино» предложено множество планировочных решений: в наличии квартиры, как классического типа, так и европланировки. Квартиры сдаются с чистовой, подчистовой и без отделки.
Проект включает в себя три детских сада, три школы и поликлинику. Также предусмотрены спортивный комплекс и торгово-развлекательный центр. Архитектурное расположение домов образует закрытый двор от машин и случайных прохожих. Для автовладельцев предусмотрены наземные и подземные паркинги. На придомовой территории находятся детские и спортивные площадки, пешеходные дорожки и места для отдыха. На первых этажах предусмотрены коммерческие помещения.
ЖК «Новое Пушкино» возводится в Подмосковном городе Пушкино. В шаговой доступности расположены школа, детские сады и торговые комплексы. Метро «Бабушкинская» в 50 минутах транспортом, выезд на МКАД — в 21 км.
О квартире
Общая площадь
71.3 м²
Жилая площадь
39.2 м²
Площадь кухни
13.2 м²
Подъезд
5
Этаж
14
Окна выходят
На улицу
О доме
Год постройки
2025
Этажность
15
Количество подъездов
5
Материал постройки
Кирпично-монолитный
Материал перекрытий
Монолитные
Отопление
Центральное
Парковка
Наземная
Расположение
Россия, Московская область, Пушкино, микрорайон Новое Пушкино, к21
Ипотечный калькулятор
Заполните 1 анкету — получите предложения от десятков банков на специальных условиях
Программа ипотеки
Стоимость жилья, ₽
Первый взнос, ₽
Срок кредита
от 5.75%
Ставка
от 109 968 ₽
Платеж в месяц
Расчёт носит информационный характер и не является публичной офертой
Похожие объекты












3-комн. квартира, 69,6 м², 15/15 эт.












3-комн. квартира, 73,2 м², 1/15 эт.












3-комн. квартира, 71,3 м², 14/15 эт.












3-комн. квартира, 71,3 м², 11/15 эт.
Консультант по новостройкам
17 480 000 ₽
245 162 ₽/м²









