Купить таунхаус на улице Дальняя в Раменском
Россия, Московская область, Раменское, Дальняя улица, 54
132.8 м²
Площадь дома
6.7 сот
Площадь участка
Газобетонный блок
Материал постройки
2
Этажей
Описание
А ВЫ УСПЕВАЕТЕ ДО ФЕВРАЛЯ?
Уникальное предложение: Дом в Раменском для комфортной жизни.
Описание объекта:
На рынке недвижимости Московской области появился новый объект — дом по адресу Дальняя улица, в городе Раменское. Построенный в 2023 году, этот двухэтажный дом площадью 132,8 кв. м предлагает просторные и светлые помещения для комфортного проживания.
Преимущества:
- Выгодная цена: предложение идеально подходит для тех, кто ищет доступное жильё высокого качества.
- Удобное расположение: дом находится в живописном районе с хорошей транспортной доступностью. Лёгкий доступ к основным магистралям и общественным транспортным средствам делает его идеальным выбором для семей и инвесторов.
-Фундамент : ж/б 200х200х4000мм. 24 шт. мех. забивка, ж/б ростверк 300х500 мм. армирование арматура 14мм. Бетон М300. Ростверк утеплен ЭППС 50 мм.
-Наружние/внутренние, несущие стены дома-газосиликатный блок 250мм. Плотность Д500, снаружи утеплены фасадным ППС 100мм. оштукатурены «под короед», покрашены. Внутри- предчистовая отделка.
- Лестница деревянная, черновая.
- Перекрытия 1/2 этаж- деревянные балки 50х200, шаг 600мм. Утепление, шумоизоляция минвата 100, перекрытие второго этажа фанера.
- Перекрытие 2 этажа/ чердак - балки 50х200 утепление 200 минвата. Шаг балок 1000.
- Кровля - металочерепица 0,45 коричневая.
- Водосток - пластик.
- Подшив карнизов пластиковые софиты.
- Окна -ПВХ, 2 камеры, 3 стекла.
- Входная дверь металл, термо-разрыв, 2 замка.
Инженерные системы:
- Катёл настенный электрический, теплый пол 1-й этаж.
- 2 закладные 100мм. под ввод в дом коммуникаций канализация/вода.
- Узел учета эл. энергии на ж/б опоре по границе участка 15кВТ. Ввод с дом воздушный распределительный щит.
Септик из трех колодцев, по 2 ж/б кольца 1000 мм каждый. С переливом, вывод из дома, кухни.
- Водоснабжение: от центральной скважины 68м.
- Ограждение: по фасаду проф. лист 2000 мм. Ворота распашные 4000мм. Калитка с врезным замком.
- Просторная планировка: общая площадь дома составляет 132,8 кв. м, включая 54 кв. м жилой площади. Четыре комнаты, идеально подойдут для семей с детьми или пар, ищущих дополнительное пространство.
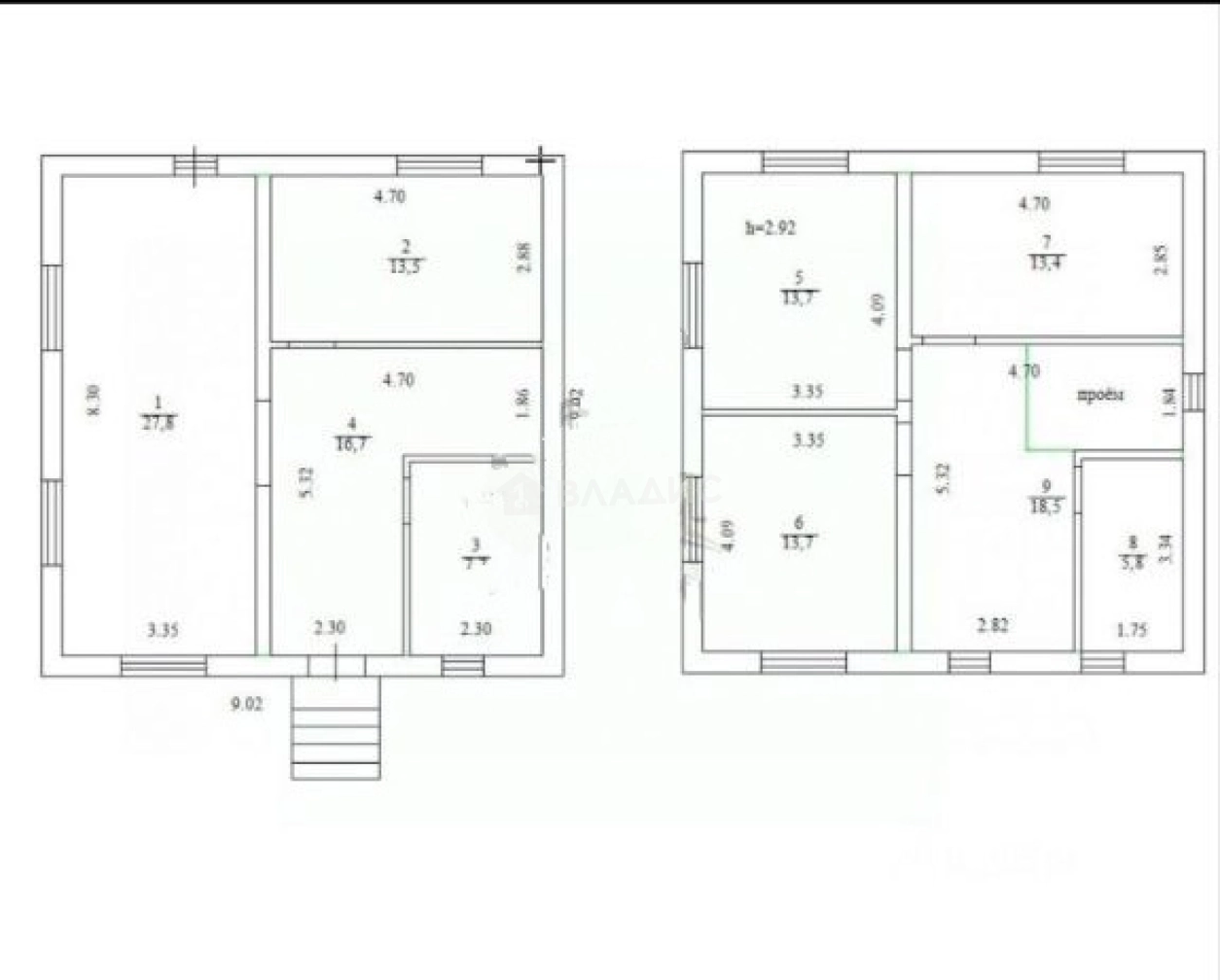
- Качественный ремонт, теплые полы по всему первому этажу: стяжка и штукатурка уже выполнены, что позволяет новым владельцам сразу приступить к финишной отделке по своему вкусу. Кухня гостиная 27.8 Комнаты 13.5, 13.4, 13.4, 13.7 Ванная 1эт.-7.7, 2эт-5.8
- Коммуникации: дом обеспечен электричеством, канализацией и водоснабжением из скважины. Своя котельная гарантирует надёжное отопление.
- Инфраструктура: развитая инфраструктура района включает школы, детские сады, магазины и медицинские учреждения, что особенно важно для семей с детьми и пожилых пар.
Заключение:
Не упустите шанс приобрести этот уникальный дом, который сочетает в себе комфорт, качество и доступность. Звоните нам прямо сейчас, чтобы узнать больше и записаться на просмотр.
Мы гарантируем безопасную сделку.
О доме
Год постройки
2023
Этажей в доме
2
Общая площадь
132.8 м²
Жилая площадь
54 м²
Площадь кухни
27.8 м²
Площадь комнат
13,5+13,4+13,4+13,7 м²
Материал постройки
Газобетонный блок
Материал перекрытий
Деревянные
Материал кровли
Металлочерепица
Раздельных санузлов
2
Об участке
Площадь участка
6.7 сот.
Статус участка
Индивидуальное жилищное строительство
Электричество
Есть
Водоснабжение
Есть
Канализация
Есть
Без благоустройства участка
Есть
Подъезд к участку
Асфальт
Расположение
Россия, Московская область, Раменское, Дальняя улица, 54
Ипотечный калькулятор
Заполните 1 анкету — получите предложения от десятков банков на специальных условиях
Программа ипотеки
Стоимость жилья, ₽
Первый взнос, ₽
Срок кредита
от 5.75%
Ставка
от 69 202 ₽
Платеж в месяц
Расчёт носит информационный характер и не является публичной офертой
Черненко Екатерина
Специалист по недвижимости
Предложите свою цену
11 000 000 ₽
82 831 ₽/м²






