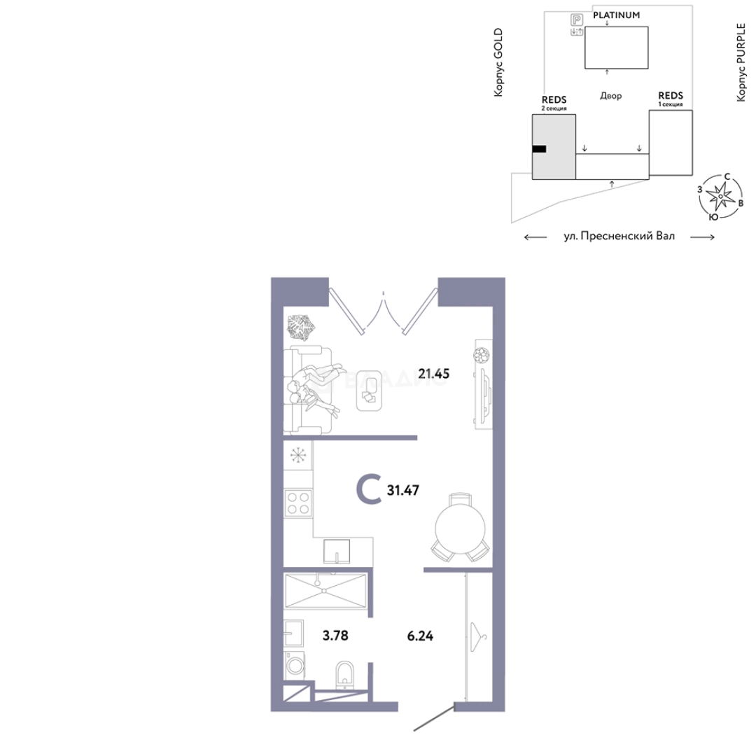
1-комн. квартира · 31.5 pм² · 4/26 эт.
Россия, Москва, ЖК Репаблик, к2.1
Белорусская
7 мин.
31.47 м²
Общая площадь
10.88 м²
Жилая площадь
10.57 м²
Площадь кухни
4 из 26
Этаж
Описание
В проекте «Republic» представлено множество планировочных решений: в наличии квартиры, как классического типа, так и европланировки. В них предусмотрены мастер-спальни с гардеробной и отдельным санузлом, в том числе ванные со стеклянной стеной. Окна — увеличенные, с низкими подоконниками, а балконы с распашными дверями. Благодаря ступенчатой архитектуре башен REDS в квартирах на 8, 11 и 18 этажах есть приватные террасы, а в пентхаусах — дровяные камины, окна в ванных и витражное остекление во всю пятиметровую высоту. Квартиры сдаются без отделки или с отделкой White box.
Территория проекта «Republic» огорожена и озеленена. Ландшафтный дизайн разработало бюро Gillespies. Свою атмосферу создает инфраструктура размещенная в памятниках — гастрономия, бассейн и спа, кинотеатр, школы и детские сады, развлекательная инфраструктура, коворкинг, event и арт-пространство. Спортивные секции, фитнес-центры, беговая дорожка, спа и бассейн, фитнес-зона находятся в каждом корпусе. Во дворе обустроены места для отдыха, зоны для детей и спорта, продуманы специальные зоны для животных. В общем стилобате расположены коммерческие помещения, а над лобби обустроена общественная терраса. Для владельцев автомобилей предусмотрен подземный паркинг.
ЖК «Republic» находится в Пресненском районе. В пешей доступности расположены школы, детские сады, магазины, кафе, салоны красоты, медицинские учреждения. В 20 минутах пешком находится Московский зоопарк. До метро «Белорусская» — 5 минут пешком.
О квартире
Общая площадь
31.47 м²
Жилая площадь
10.88 м²
Площадь кухни
10.57 м²
Площадь комнат
21.5 м²
Высота потолков
3.1 м
Этаж
4
Окна выходят
На улицу
О доме
Год постройки
2025
Этажность
26
Количество подъездов
1
Материал постройки
Монолитный
Материал перекрытий
Монолитные
Отопление
Центральное
Пассажирских лифтов
1
Грузовых лифтов
1
Парковка
Подземная
Расположение
Россия, Москва, ЖК Репаблик, к2.1
Белорусская
7 мин.
Белорусская
7 мин.
Белорусская
8 мин.
Улица 1905 года
15 мин.
Краснопресненская
18 мин.
Ипотечный калькулятор
Заполните 1 анкету — получите предложения от десятков банков на специальных условиях
Программа ипотеки
Стоимость жилья, ₽
Первый взнос, ₽
Срок кредита
от 5.75%
Ставка
от 265 621 ₽
Платеж в месяц
Расчёт носит информационный характер и не является публичной офертой
Консультант по новостройкам
42 221 800 ₽
1 341 653 ₽/м²























