Купить дом в Республике Башкортостан
Россия, Республика Башкортостан, Стерлитамакский район, село Айгулево
56 м²
Площадь дома
15 сот
Площадь участка
Деревянный
Материал постройки
1
Этажей
Описание
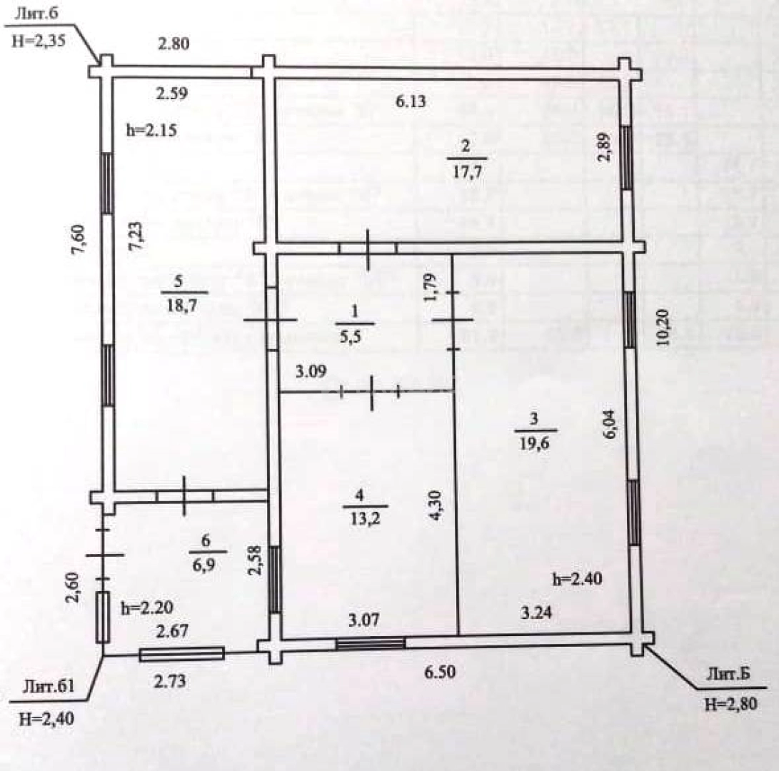
Дом построен в 2002 году из дерева. В нём одна жилая этаж, две комнаты площадью 17,7 и 13,2 квадратных метров, а также просторная кухня площадью 19,6 квадратных метров. Общая площадь дома составляет 56 квадратных метров, из которых 30,9 квадратных метров — жилая площадь. Косметический ремонт создаёт приятную атмосферу для проживания.
На участке в 33 сотки есть баня, что добавляет комфорта и удобства для будущих владельцев. Дом оснащён индивидуальным котлом отопления, что гарантирует тепло и уют в холодное время года. Подъезд к участку выполнен из щебёнки, коммуникации проведены: электричество и водоснабжение. Водоснабжение осуществляется через скважину. Крыша дома покрыта шифером.
Расположение дома идеально подходит для тех, кто ценит спокойствие и уединение, при этом имея доступ ко всем необходимым удобствам.
Мы гарантируем безопасную сделку и юридическую поддержку нашим клиентам. Поможем одобрить ипотеку с сниженной ставкой.
Не упустите свой шанс стать владельцем этого прекрасного дома!
О доме
Год постройки
2002
Этажей в доме
1
Общая площадь
56 м²
Жилая площадь
30.9 м²
Площадь кухни
19.6 м²
Площадь комнат
17,7+13,2 м²
Материал постройки
Деревянный
Материал перекрытий
Деревянные
Материал кровли
Шифер
Отопление
Индивидуальный котел
Об участке
Площадь участка
15 сот.
Статус участка
Личное подсобное хозяйство
Электричество
Есть
Водоснабжение
Есть
Баня
Есть
Подъезд к участку
Щебенка
Расположение
Россия, Республика Башкортостан, Стерлитамакский район, село Айгулево
Ипотечный калькулятор
Заполните 1 анкету — получите предложения от десятков банков на специальных условиях
Программа ипотеки
Стоимость жилья, ₽
Первый взнос, ₽
Срок кредита
от 5.75%
Ставка
от 12 268 ₽
Платеж в месяц
Расчёт носит информационный характер и не является публичной офертой
Предложите свою цену
1 950 000 ₽
34 821 ₽/м²

















