Купить дом в Республике Башкортостан
Россия, Республика Башкортостан, Абзелиловский район, Давлетовский сельсовет, село Давлетово
306.5 м²
Площадь дома
28.77 сот
Площадь участка
Кирпичный
Материал постройки
2
Этажей
Описание
🔰 ОБ УЧАСТКЕ:
Земельный участок 2877 м2 разделен по документам на 2 части: 1535 м2 и 1342 м2, на одном из которых расположен дом.
🔰 КОММУНИКАЦИИ:
Газ - центральный.
Электричество - центральное.
Вода - скважина глубиной 54 м.
Канализация - переливной септик.
Отопление - автономное (газовый котел).
🔰 КОНСТРУКТИВ:
Фундамент: монолитная плита, утепленная экструзией.
Фасадные стены: кирпич 380 мм (марка "УралГлавКерамика") + утепление минеральной ватой 100 мм + декоративная штукатуркой CERESIT.
Внутренние стены: кирпич 280 мм и 150 мм (марка "УралГлавКерамика").
Перекрытия: бетонная монолитная плита.
Крыша: бетонная монолитная плита + мягкая кровля "Технониколь" (выполнена в строгом соответствии с технологией).
Окна: тройной стеклопакет + профиль 70мм - энергосберегающие окна портальной системы в пол фирмы VEKA SOFTLINE (в холодное время года тепло, идущее от нагревательных элементов не уходит на улицу, а летом солнечный свет не будет перегревать помещение).
🔰 РЕМОНТ:
Разводка электричества произведена по дому согласно дизайн проекту по потолку и под штукатуркой.
Штукатурка механизированная по маякам под чистовую отделку.
Полы ровные по уровню с разводкой системы "Теплый пол" (водяного отопления) под стяжкой по всему первому и второму этажу.
Установлены радиаторы, конвекторы, система вентиляции с выходом на крышу.
Выход на крышу осуществляется через утепленный люк с подъемным механизмом (газовые амортизаторы).
Разводка по всему дому труб водоснабжения и канализации.
Установлены автоматические немецкие ворота в двух гаражах.
На втором этаже установлен итальянский камин.
На первом этаже установлена дровяная печь для бани "Атмосфера".
🔰 БОНУС:
▪ Европейский санфаянс.
▪ Смесители.
▪ Ванна фаянсовая 170*70см.
▪ Европейский кафель на стены.
▪ Керамогранит на пол.
▪ Материалы для финишной отделки фасада.
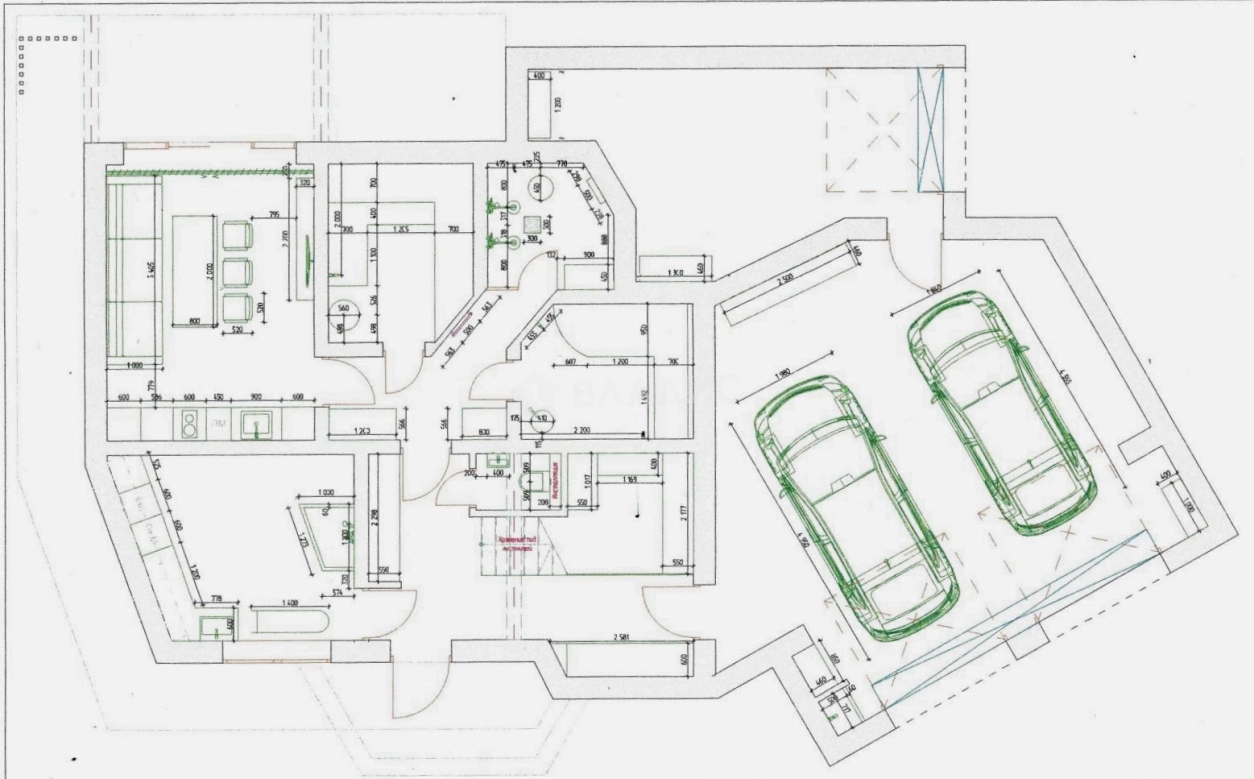
🔰 ПЛАНИРОВКА 1 этаж:
Прихожая - 6,08 м2;
Котельная - 13,04 м2;
Кухня-гостиная - 19,51 м2;
Проходная зона - 6,32 м2;
Сауна на дровах - 8,11 м2;
Душевая - 4,90 м2;
Хаммам с парогенератором - 7,36 м2;
Санузел - 1,55 м2;
Коридор - 6,36 м2;
Лестница/хранение - 6,83 м2;
Автогараж - 54,58 м2;
Мотогараж - 20,84 м2.
🔰 ПЛАНИРОВКА 2 этаж:
Кухня-гостиная - 49,86 м2;
Хоз. спальня - 11,31 м2;
Ванна - 7,85 м2;
Гардеробная - 7,84 м2;
Кабинет - 8,94 м2;
Детская 1 - 16,12 м2;
Детская 2 - 17,06 м2;
Санузел - 6,62 м2;
Прачечная - 5,78 м2;
Коридор - 10,93 м2;
Лестничный проем - 6,79 м2.
Агентство недвижимости «АВРОРА ВЛАДИС».
г. Магнитогорск, пр. Ленина, д. 154.
Все, продаваемые нами объекты недвижимости, проходят обязательную полную юридическую экспертизу!
Отзывы о нас, Вы можете посмотреть в 2Гис.
С уважением, Юлия Швецова!
О доме
Год постройки
2022
Этажей в доме
2
Общая площадь
306.5 м²
Жилая площадь
105 м²
Площадь кухни
20 м²
Площадь комнат
15+15+30+10+ 15+20 м²
Материал постройки
Кирпичный
Материал перекрытий
Ж/б плиты
Материал кровли
Мягкая черепица
Раздельных санузлов
1
Об участке
Площадь участка
28.77 сот.
Статус участка
Индивидуальное жилищное строительство
Электричество
Есть
Газ
Есть
Водоснабжение
Есть
Канализация
Есть
Гараж
Есть
Подъезд к участку
Щебенка
Расположение
Россия, Республика Башкортостан, Абзелиловский район, Давлетовский сельсовет, село Давлетово
Ипотечный калькулятор
Заполните 1 анкету — получите предложения от десятков банков на специальных условиях
Программа ипотеки
Стоимость жилья, ₽
Первый взнос, ₽
Срок кредита
от 5.75%
Ставка
от 156 019 ₽
Платеж в месяц
Расчёт носит информационный характер и не является публичной офертой
Предложите свою цену
24 800 000 ₽
80 914 ₽/м²




































