Купить дом на улице Бригадная в Республике Башкортостан
Россия, Республика Башкортостан, Чишминский район, Лесной сельсовет, село Алкино-2, Бригадная улица, 26
119 м²
Площадь дома
12 сот
Площадь участка
Блочный
Материал постройки
2
Этажей
Описание
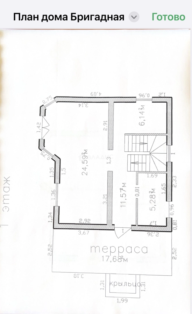
Дом построен в 2024 году из качественных материалов (керамзитоблок, ж/б перекрытия), что гарантирует его долговечность, надёжность и тепло. Установлены тонированные мультифункциональные окна (холод не впускают, тепло не выпускают). Общая площадь дома составляет 119 кв. м, из которых 59,59 кв. м — жилая площадь. Высота потолков 3,2 м создаёт ощущение простора и свободы. Дом имеет 4 комнаты, идеально подходящие для большой семьи, и два санузла. Дом строили для себя, из-за срочного переезда вынуждены продать.
Участок площадью 12 соток с удобным асфальтовым подъездом и статусом ИЖС предоставляет возможности для благоустройства по вашему вкусу. Дом оборудован всеми необходимыми коммуникациями: электричеством, водоснабжением из скважины (артезианская вода), газом. Своя котельная обеспечивает эффективное отопление(теплый пол по всему первому этажу), делая дом подходящим для круглогодичного проживания.
Близость к природе и одновременно доступность городской инфраструктуры делают этот дом привлекательным вариантом для семей, ценящих спокойствие и уют. Всего 20 км до города — и вы в центре событий!
Звоните нам прямо сейчас, чтобы узнать больше и записаться на просмотр. Мы гарантируем безопасную сделку и юридическую поддержку нашим клиентам. Поможем одобрить ипотеку с сниженной ставкой.
О доме
Год постройки
2024
Этажей в доме
2
Общая площадь
119 м²
Жилая площадь
59.59 м²
Площадь кухни
24.59 м²
Площадь комнат
24,59+12,57+11,32+11,11 м²
Материал постройки
Блочный
Материал перекрытий
Ж/б плиты
Материал кровли
Металлочерепица
Высота потолков
3.2 м
Об участке
Площадь участка
12 сот.
Статус участка
Индивидуальное жилищное строительство
Электричество
Есть
Газ
Есть
Водоснабжение
Есть
Без благоустройства участка
Есть
Подъезд к участку
Асфальт
Расположение
Россия, Республика Башкортостан, Чишминский район, Лесной сельсовет, село Алкино-2, Бригадная улица, 26
Ипотечный калькулятор
Заполните 1 анкету — получите предложения от десятков банков на специальных условиях
Программа ипотеки
Стоимость жилья, ₽
Первый взнос, ₽
Срок кредита
от 5.75%
Ставка
от 42 780 ₽
Платеж в месяц
Расчёт носит информационный характер и не является публичной офертой
Предложите свою цену
6 800 000 ₽
57 143 ₽/м²

























