Купить дом на улице Любажинская в Микрорайоне Любажи в Республике Башкортостан
Россия, Республика Башкортостан, Стерлитамакский район, деревня Казадаевка, Любажинская улица
154.4 м²
Площадь дома
8 сот
Площадь участка
Кирпичный
Материал постройки
1
Этажей
Описание
Основные преимущества:
- Новый дом 2025 года строительства из прочных блоков с железобетонными перекрытиями и надёжной крышей из профнастила.
- Полный набор коммуникаций: электричество, скважина с чистой водой, индивидуальный котёл для отопления.
- Большой участок 8 соток с удобным подъездом по щебёнке и гаражом для вашего автомобиля.
- Удобное расположение: всего 3 км до города, что обеспечивает быстрый доступ ко всей городской инфраструктуре.
Характеристики дома:
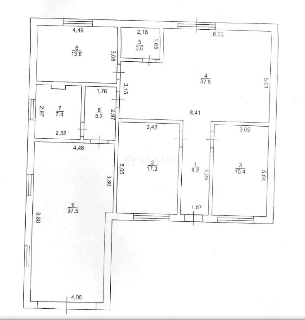
- Общая площадь — 154,4 кв.м
- Жилая площадь — 46,3 кв.м
- Просторная кухня — 37,8 кв.м
- Три комнаты 17,3 кв.м, 15,4кв.м и 13,8 кв.м
- Один совмещённый санузел
Звоните прямо сейчас, чтобы получить подробности и назначить просмотр! Ваш новый дом ждёт вас.
О доме
Год постройки
2025
Этажей в доме
1
Общая площадь
154.4 м²
Жилая площадь
46.5 м²
Площадь кухни
37.8 м²
Площадь комнат
17,3+15,4+13,8 м²
Материал постройки
Кирпичный
Материал перекрытий
Ж/б плиты
Материал кровли
Профнастил
Совмещенных санузлов
1
Об участке
Площадь участка
8 сот.
Статус участка
Индивидуальное жилищное строительство
Электричество
Есть
Водоснабжение
Есть
Гараж
Есть
Подъезд к участку
Грунтовка
Расположение
Россия, Республика Башкортостан, Стерлитамакский район, деревня Казадаевка, Любажинская улица
Ипотечный калькулятор
Заполните 1 анкету — получите предложения от десятков банков на специальных условиях
Программа ипотеки
Стоимость жилья, ₽
Первый взнос, ₽
Срок кредита
от 5.75%
Ставка
от 43 409 ₽
Платеж в месяц
Расчёт носит информационный характер и не является публичной офертой
Предложите свою цену
6 900 000 ₽
44 689 ₽/м²








































