Купить дом в Республике Крым
Россия, Республика Крым, Симферопольский район, село Чистенькое
92.7 м²
Площадь дома
6 сот
Площадь участка
Кирпичный
Материал постройки
1
Этажей
Описание
Стоимость дома без земельного участка!
Идеальное жилье среди живописной природы Крыма.
Стоимость дома с земельным участком, 6 соток ИЖС, в этой локации 8 753 000 рублей.
Коммуникации идут по границе участка, электричество, газ , центральный водопровод.
Есть выбор проекта домов под индивидуальные требования клиента.
Строим дома на вашем участке.
Помогаем подобрать участок для строительства вашего дома по Крыму!
Есть выбор проекта дома под клиента.
Строим дома на вашем участке.
Помогаем подобрать участок для строительства вашего дома.
Представляем вашему вниманию уникальный дом от надежного застройщика в живописнщм уголке полуострова Крым — идеальное место для тех, кто мечтает жить вдали от городской суеты, наслаждаясь красотой природы и свежим воздухом каждый день!
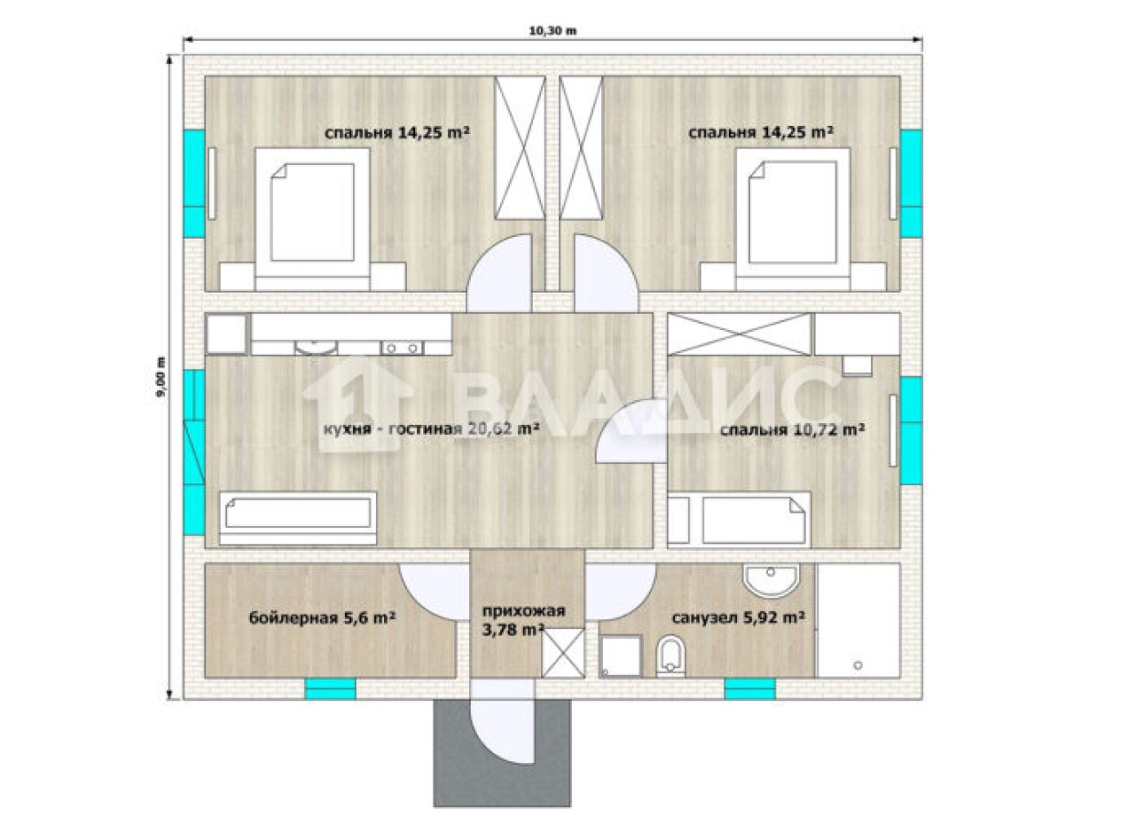
- Общая площадь: 92,7 кв.м
- Жилая зона: 75,05 кв.м
Характеристики:
Размеры дома по фундаменту: 10,3*9м
3 спальни, Кухня-гостиная, Санузел, Бойлерная, Коридор, Прихожая
Фундамент: бетон м250
Материал стен: газоблок или ракушка*
Колонны, армопояс,перемычки: бетон м250
Кровля: балки и стропила 150*50мм, металлочерепица 0,45мм, утеплитель 150 мм мин вата
Внешняя отделка: утеплитель пенопласт 5 см, штукатурка «короед», покраска
Этот просторный и уютный дом предлагает комфортное проживание всей семье круглый год. Качественные строительные материалы и продуманная планировка создают атмосферу тепла и домашнего уюта.
Из окон открывается потрясающий вид на бескрайние крымские просторы, зеленые холмы , лес. Здесь вы сможете отдохнуть душой и телом после напряженного рабочего дня, насладиться тишиной и спокойствием загородной жизни.
Инфраструктура включает: удобные дороги, школа, детский сад, зоны отдыха и прогулки, где приятно проводить время с семьей и друзьями. Рядом расположены живописные маршруты для прогулок пешком или на велосипеде, лесные тропинки и озера, создающие неповторимую атмосферу гармонии и единения с природой.
До моря 20 км.
Живите в собственном доме своей мечты! Убедитесь сами во всех преимуществах владения недвижимостью в Крыму и сделайте правильный выбор уже сегодня!
Приглашаем заинтересованных клиентов!
Для дополнительной информации звоните!
Быстро организую встречу индивидуально с нашим руководителем застройщиком!
Приобретая этот дом, вы приобретаете гораздо больше — свободу наслаждаться жизнью, созерцание красоты вокруг себя и полное ощущение счастья каждого нового дня!
Стоимость дома в пред чистовой отделке. Делаем ремонт "под ключ".
О доме
Год постройки
2025
Этажей в доме
1
Общая площадь
92.7 м²
Жилая площадь
39.22 м²
Площадь кухни
20.62 м²
Площадь комнат
14,25+14,25+10,72 м²
Материал постройки
Кирпичный
Материал перекрытий
Смешанные
Материал кровли
Металлочерепица
Высота потолков
2.7 м
Об участке
Площадь участка
6 сот.
Статус участка
Индивидуальное жилищное строительство
Электричество
Есть
Газ
Есть
Канализация
Есть
Без благоустройства участка
Есть
Подъезд к участку
Асфальт
Расположение
Россия, Республика Крым, Симферопольский район, село Чистенькое
Ипотечный калькулятор
Заполните 1 анкету — получите предложения от десятков банков на специальных условиях
Программа ипотеки
Стоимость жилья, ₽
Первый взнос, ₽
Срок кредита
от 5.75%
Ставка
от 38 080 ₽
Платеж в месяц
Расчёт носит информационный характер и не является публичной офертой
Насилевич Татьяна
Агент по недвижимости
Предложите свою цену
6 053 000 ₽
65 297 ₽/м²












