Дом · 134 pм² · 10 сот.
Россия, Республика Татарстан (Татарстан), Лаишевский район, село Сокуры, коттеджный посёлок Новые Сокуры - 2, улица Свободы, 36
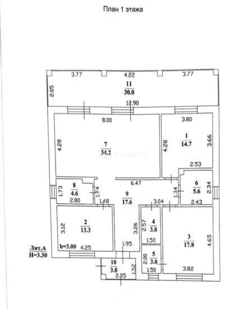
134 м²
Площадь дома
10 сот
Площадь участка
Кирпичный
Материал постройки
1
Этажей
Описание
Мечтаете о просторном, теплом доме с удобной планировкой, расположенном в живописном и тихом месте, но с быстрым доступом к городу? Этот дом – идеальный вариант для Вас!
О ДОМЕ:
• Площадь: 134 кв. м. – просторный и функциональный дом для комфортного проживания.
• Терраса: Прекрасная терраса – идеальное место для утреннего кофе, вечерних посиделок с семьей и друзьями, или просто для наслаждения свежим воздухом.
• Теплый и качественный: Дом построен добросовестным застройщиком с использованием качественных материалов. Ощутите тепло и уют круглый год!
• Планировка: Удачное расположение комнат – продумано для Вашего удобства и функциональности.
• Предчистовая отделка: Дом готов к финишной отделке по Вашему вкусу! Вам останется только выбрать обои, напольное покрытие и наслаждаться созданием интерьера своей мечты.
• Коммуникации:
* Электричество: Подключено.
* Газ: Подключен.
* Вода: Подключена.
* Канализация: Индивидуальный септик объемом 3 куб. м.
ПРЕИМУЩЕСТВА МЕСТОПОЛОЖЕНИЯ:
• 20 км от города: Идеальное сочетание загородного спокойствия и легкого доступа к городской инфраструктуре.
• Удобные развязки: Быстрое и комфортное перемещение в город и другие направления.
• Рядом природа:
* Река Меша: Наслаждайтесь живописными видами, прогулками у воды, рыбалкой.
* Лес через дорогу: Идеальное место для прогулок, сбора грибов и ягод, активного отдыха на свежем воздухе.
• Тихое место: Наслаждайтесь покоем, тишиной и пением птиц, вдали от городской суеты.
• Развитая инфраструктура :
* Школы
* Детские сады
* Мечеть
Этот дом станет Вашим идеальным выбором, если Вы цените:
• Качество и надежность: Дом от добросовестного застройщика.
• Комфорт: Тепло, все коммуникации, удобная планировка и терраса.
• Близость к природе: Река и лес в шаговой доступности.
• Тишину и спокойствие: Загородная жизнь без компромиссов.
• Удобное расположение: Быстрый доступ к городу и всей необходимой инфраструктуре.
• Возможность воплотить дизайн мечты: Предчистовая отделка позволяет сделать дом полностью индивидуальным.
ЮРИДИЧЕСКАЯ ЧИСТОТА И БЕЗОПАСНОСТЬ СДЕЛКИ:
• Дом и земельный участок без залога и обременений!
• Организуем осмотр в удобное для Вас время.
• Гарантируем юридически безопасную сделку!
• Сопровождаем Вас на всем периоде сделки.
---
Не упустите свой шанс приобрести дом, где будет комфортно жить Вашей семье!
Звоните прямо сейчас, чтобы узнать подробности и записаться на просмотр!
О доме
Год постройки
2025
Этажей в доме
1
Общая площадь
134 м²
Жилая площадь
120 м²
Площадь кухни
12 м²
Материал постройки
Кирпичный
Материал перекрытий
Деревянные
Материал кровли
Профнастил
Раздельных санузлов
1
Совмещенных санузлов
1
Об участке
Площадь участка
10 сот.
Статус участка
Индивидуальное жилищное строительство
Электричество
Есть
Газ
Есть
Водоснабжение
Есть
Канализация
Есть
Без благоустройства участка
Есть
Расположение
Россия, Республика Татарстан (Татарстан), Лаишевский район, село Сокуры, коттеджный посёлок Новые Сокуры - 2, улица Свободы, 36
Ипотечный калькулятор
Заполните 1 анкету — получите предложения от десятков банков на специальных условиях
Программа ипотеки
Стоимость жилья, ₽
Первый взнос, ₽
Срок кредита
от 5.75%
Ставка
от 62 911 ₽
Платеж в месяц
Расчёт носит информационный характер и не является публичной офертой
Предложите свою цену
10 000 000 ₽
74 627 ₽/м²






























