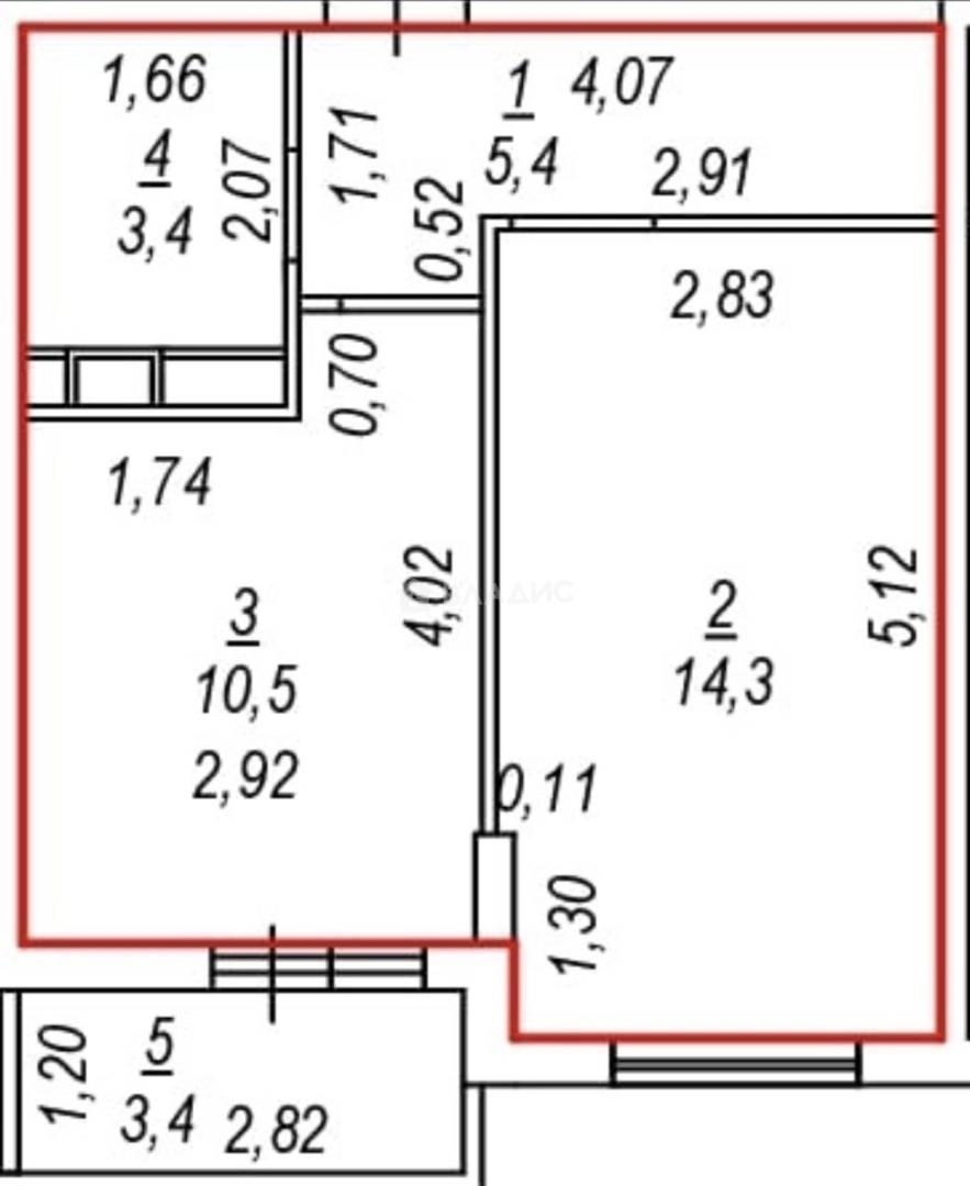
Продается 1-комн. квартира, 36.4 м²
Россия, Ростов-на-Дону, улица Нансена, 83с2
36.4 м²
Общая площадь
14.3 м²
Жилая площадь
10.5 м²
Площадь кухни
14 из 25
Этаж
Описание
Ростов-на-Дону
Общая площадь - 36,4 м²;
Этаж - 14 из 25;
Дом - монолитно-кирпичный, 2021 года;
Планировка:
• Комната изолирована;
• Просторная кухня-гостиная;
• Просторная лоджия;
Состояние:
Дизайнерский ремонт c европланировкой — можно заезжать сразу;
В квартире остается встроенная кухня, вся мебель и техника;
Инфраструктура:
Район — Октябрьский, ТРЦ «РИО», школа, магазины, кафе, медицинские учреждения, собственный детский сад, зоопарк, парки и скверы, остановки общественного транспорта находятся в радиусе доступности;
До центра города - 10 минут;
• 1 взрослый собственник
О квартире
Общая площадь
36.4 м²
Жилая площадь
14.3 м²
Площадь кухни
10.5 м²
Площадь комнат
14,3 м²
Высота потолков
2.7 м
Этаж
14
Расположение квартиры
не угловая
Окна выходят
Во двор
Совмещенных санузлов
1
Мебель
Да
О доме
Год постройки
2021
Этажность
25
Количество подъездов
2
Материал постройки
Кирпично-монолитный
Материал перекрытий
Ж/б плиты
Отопление
Своя котельная
Пассажирских лифтов
2
Грузовых лифтов
1
Парковка
Наземная
Расположение
Россия, Ростов-на-Дону, улица Нансена, 83с2
Ипотечный калькулятор
Заполните 1 анкету — получите предложения от десятков банков на специальных условиях
Программа ипотеки
Стоимость жилья, ₽
Первый взнос, ₽
Срок кредита
от 5.75%
Ставка
от 40 892 ₽
Платеж в месяц
Расчёт носит информационный характер и не является публичной офертой
Предложите свою цену
6 500 000 ₽
178 571 ₽/м²




































































































