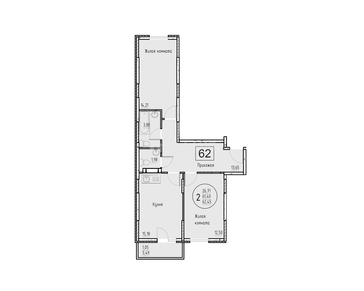
Продается 2-комн. квартира, 64.1 м²
Россия, Ростов-на-Дону, проспект Маршала Жукова, 18
64.1 м²
Общая площадь
26 м²
Жилая площадь
15 м²
Площадь кухни
5 из 10
Этаж
Описание
Квартира имеет площадь 65 квадратных метров и расположена на 5 этаже. Отличная планировка бабочка .Окна выходят на две стороны света(во двор и на улицу).
Просторная кухня-гостиная квадратной формы. Что дает возможность комфортно распределить зону кухни и зону отдыха., Две изолированные комнаты выходящие в разные стороны.
В квартире выполнен ремонт, установлена сантехника и свет. В прихожей, ванной комнате и санузле керамогранит, установлена хорошая входная дверь, на стенах оклеены обои с багетами. Заказана кухонная мебель и гардеробная.
В комплексе своя газовая крышная котельная, что дает возможность не зависеть от города.
Видеонаблюдение ,система умный дом, оплата коммунальных платежей по индивидуальным счетчикам(включая отопление).
Первые этажи -коммерция, комплексе уже начали строительство детского сада.
В проекте объединение Ул. Маршала Жукова с улицей Малиновского, что сделает локацию еще более привлекательной! В микрорайоне есть все необходимое для комфортной жизни: магазины, супермаркеты, аптеки, банки, детские сады, школы, спортивные площадки и парки.
Остановки общественного транспорта находятся в пешей доступности, что позволит легко и быстро добраться до любой точки города.
ЖК Грей (Grаy) - новый фоpмат жилoгo комплекса для Левенцовcкoгo paйoна, класc кoмфoрт.
Дизайнерское оформление холла и лестничных площадок.
Главной особенность комплекса - это мало этажность застройки (9 и 10 этажей)!
Внешняя инфраструктура: детский сад, школа, поликлиника и ТЦ Золотой Вавилон.
Закрытый двор обеспечивает безопасность пребывания на территории комплекса. Подземный паркинг.
• 1 взрослый собственник
• Без обременений
Сделка под ключ с полным юридическим сопровождением агентства
недвижимости «ВЛАДИС».
О квартире
Общая площадь
64.1 м²
Жилая площадь
26 м²
Площадь кухни
15 м²
Площадь комнат
14+12 м²
Подъезд
2
Этаж
5
Расположение квартиры
не угловая
Окна выходят
На улицу
Раздельных санузлов
2
Ремонт
Дизайнерский
О доме
Год постройки
2023
Этажность
10
Количество подъездов
2
Материал постройки
Монолитный
Материал перекрытий
Монолитные
Отопление
Своя котельная
Грузовых лифтов
1
Парковка
Подземная
Огороженная территория
Да
Расположение
Россия, Ростов-на-Дону, проспект Маршала Жукова, 18
Ипотечный калькулятор
Заполните 1 анкету — получите предложения от десятков банков на специальных условиях
Программа ипотеки
Стоимость жилья, ₽
Первый взнос, ₽
Срок кредита
от 5.75%
Ставка
от 59 766 ₽
Платеж в месяц
Расчёт носит информационный характер и не является публичной офертой
Похожие объекты









2-комн. квартира, 56,2 м², 13/16 эт.








2-комн. квартира, 71,4 м², 2/15 эт.
Предложите свою цену
9 500 000 ₽
148 206 ₽/м²












































































