Купить дом на улице Севастопольская в Ростовской области
Россия, Ростовская область, Неклиновский район, Новобессергеневское сельское поселение, посёлок Дмитриадовка, Севастопольская улица
97.9 м²
Площадь дома
5.18 сот
Площадь участка
Кирпичный
Материал постройки
1
Этажей
Описание
Подходит под любой вид оплаты!
Шикарный новый дом!
В интенсивно развивающимся районе Новобессергеневка.
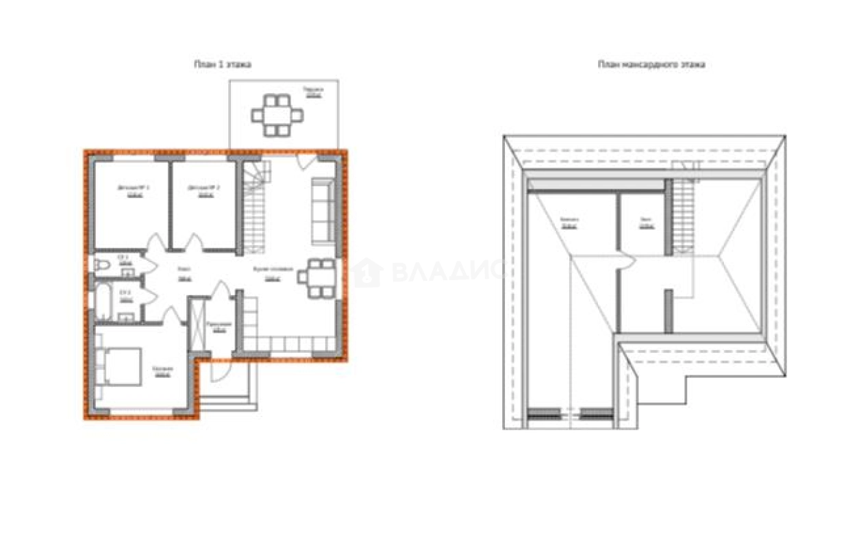
В доме:
- 3 раздельные спальни
- Огромная Кухня-Гостинная
- Раздельный Сан узел
- Выход на веранду
- Возможность увеличить площадь за счет мансарды
- Забор по периметру участка
- ГАЗ в доме
- Вода - скважина в доме
- Канализация - Септик. Заведено в дом.
-Выбирая нашу компанию «АН ВЛАДИС» Вы получаете уникальные преимущества:
-персонального менеджера
-юридическое сопровождение от начала до конца
-работая с ВЛАДИС вам гарантирован самый низкий % по ипотеки скидка до 1% в банках- партнерах
-экономия до 50% на страховании
-наш ипотечный брокер подаст все документы за Вас
-мы оформляем все виды сделок которые застрахованы на 77 млн. руб.
- Дополнительно оплачивается комиссия с покупателя
О доме
Год постройки
2024
Этажей в доме
1
Общая площадь
97.9 м²
Жилая площадь
36.97 м²
Площадь кухни
32.68 м²
Площадь комнат
36,97 м²
Материал постройки
Кирпичный
Материал перекрытий
Деревянные
Материал кровли
Мягкая черепица
Раздельных санузлов
1
Об участке
Площадь участка
5.18 сот.
Статус участка
Личное подсобное хозяйство
Электричество
Есть
Газ
Есть
Водоснабжение
Есть
Канализация
Есть
Подъезд к участку
Грунтовка
Расположение
Россия, Ростовская область, Неклиновский район, Новобессергеневское сельское поселение, посёлок Дмитриадовка, Севастопольская улица
Ипотечный калькулятор
Заполните 1 анкету — получите предложения от десятков банков на специальных условиях
Программа ипотеки
Стоимость жилья, ₽
Первый взнос, ₽
Срок кредита
от 5.75%
Ставка
от 47 183 ₽
Платеж в месяц
Расчёт носит информационный характер и не является публичной офертой
Предложите свою цену
7 500 000 ₽
76 609 ₽/м²










