Купить дом на улице Машиностроительная в Ростовской области
Россия, Ростовская область, Мясниковский район, хутор Красный Крым, Машиностроительная улица
120 м²
Площадь дома
5 сот
Площадь участка
Кирпичный
Материал постройки
1
Этажей
Описание
Возможна покупка в Семейную ипотеку 6%: одним ребенок до 7 лет , двое детей до 18 лет.
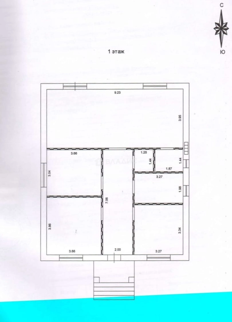
Площадь дома - 120 м²;
Площадь земельного участка - 5 соток земли;
Назначение земли - ИЖС, прописка возможна;
Планировка:
• 3 изолированные спальни, кухня-гостиная, 2 санузла;
• Отдельная котельная и гардеробная;
• Панорамные окна с живописными видовыми характеристиками, высокие потолки.
Коммуникации:
Газ, вода-скважина, электричество - заведены;
Локация:
Район —х.Красный крым - 15 мин до города;
Подъезд к участку по асфальтированной дороге.
Развитая инфраструктура хутора
- общеобразовательная школа;
- два детских сада;
- спортивный центр;
- бассейн с 4-мя дорожками по 25 метров;
- развлекательный центр для детей;
- магазины;
Соседи уже построились, улица жилая;
Дом подходит как для постоянного проживания, так и как загородный вариант в городе.
• Собственник 1, документы готовы к продаже;
• Без долгов и обременений;
Сделка под ключ с полным юридическим сопровождением агентства недвижимости «ВЛАДИС».
О доме
Год постройки
2025
Этажей в доме
1
Общая площадь
120 м²
Жилая площадь
54 м²
Площадь кухни
18 м²
Материал постройки
Кирпичный
Материал перекрытий
Деревянные
Материал кровли
Металлочерепица
Высота потолков
3 м
Раздельных санузлов
2
Об участке
Площадь участка
5 сот.
Статус участка
Индивидуальное жилищное строительство
Электричество
Есть
Газ
Есть
Без благоустройства участка
Есть
Подъезд к участку
Щебенка
Расположение
Россия, Ростовская область, Мясниковский район, хутор Красный Крым, Машиностроительная улица
Ипотечный калькулятор
Заполните 1 анкету — получите предложения от десятков банков на специальных условиях
Программа ипотеки
Стоимость жилья, ₽
Первый взнос, ₽
Срок кредита
от 5.75%
Ставка
от 40 892 ₽
Платеж в месяц
Расчёт носит информационный характер и не является публичной офертой
Предложите свою цену
6 500 000 ₽
54 167 ₽/м²



















