1-комн. квартира · 45 pм² · 19/19 эт.
Россия, Ростов-на-Дону, улица Зорге, 9
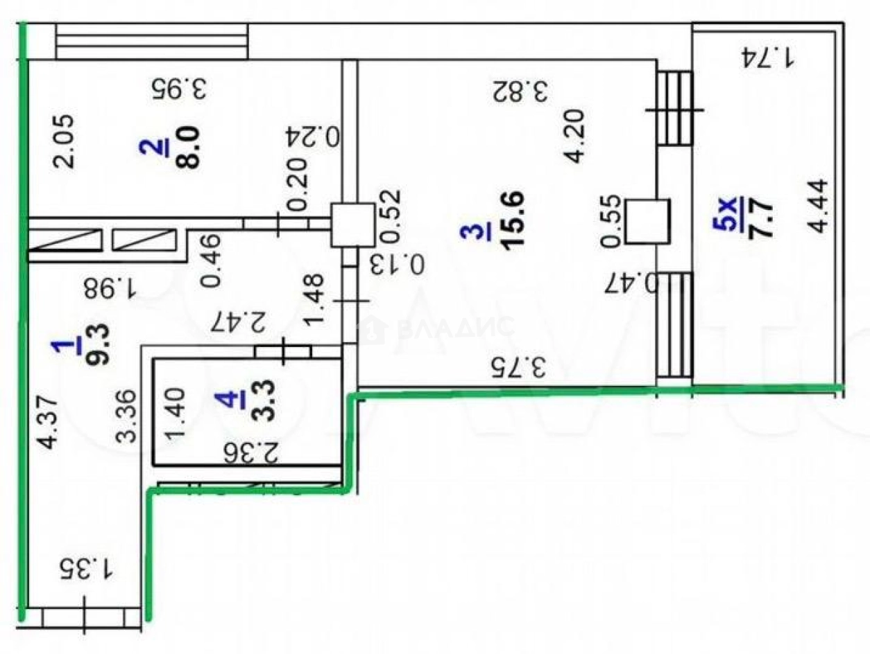
45 м²
Общая площадь
19 м²
Жилая площадь
9 м²
Площадь кухни
19 из 19
Этаж
Описание
Ростов-на-Дону
Общая площадь: 45 м²;
Этаж: 19 из 19;
Дом: кирпичный, 2022 года.
ПЛАНИРОВКА:
• Изолированная комната;
• Кухня — 9 м²;
• Просторная лоджия.
СОСТОЯНИЕ:
• Дизайнерский ремонт — можно заезжать сразу;
• Использованы качественные материалы, продуманная эргономика;
• Стильные интерьерные решения — комфорт и уют в каждой детали;
• Современное освещение, функциональное зонирование, аккуратные декоративные акценты.
ИНФРАСТРУКТУРА:
• Район — ЗЖМ, рядом ЮФУ;
• В пешей доступности — школа, поликлиника, магазины, остановки транспорта;
• Одна из лучших транспортных развязок города — удобный выезд в любой район;
• До центра города — 15 минут на машине, даже в час пик.
1 взрослый собственник;
Без обременений.
Сделка под ключ с полным юридическим сопровождением агентства недвижимости «ВЛАДИС».
О квартире
Общая площадь
45 м²
Жилая площадь
19 м²
Площадь кухни
9 м²
Площадь комнат
19 м²
Высота потолков
2.7 м
Подъезд
2
Этаж
19
Расположение квартиры
не угловая
Окна выходят
На улицу
Совмещенных санузлов
1
О доме
Год постройки
2022
Этажность
19
Количество подъездов
2
Материал постройки
Кирпичный
Материал перекрытий
Ж/б плиты
Отопление
Центральное
Пассажирских лифтов
1
Грузовых лифтов
1
Парковка
Подземная
Расположение
Россия, Ростов-на-Дону, улица Зорге, 9
Ипотечный калькулятор
Заполните 1 анкету — получите предложения от десятков банков на специальных условиях
Программа ипотеки
Стоимость жилья, ₽
Первый взнос, ₽
Срок кредита
от 5.75%
Ставка
от 43 723 ₽
Платеж в месяц
Расчёт носит информационный характер и не является публичной офертой
Похожие объекты
Предложите свою цену
6 950 000 ₽
154 444 ₽/м²















































































