Продается Недвижимость Свободного Назначения, 118 м²
Россия, Рязань, Первомайский проспект, 23
118 м²
Общая площадь
Отдельный
Вход в помещение
Свободный
Доступ в помещение
1 из 4
Этаж
Описание
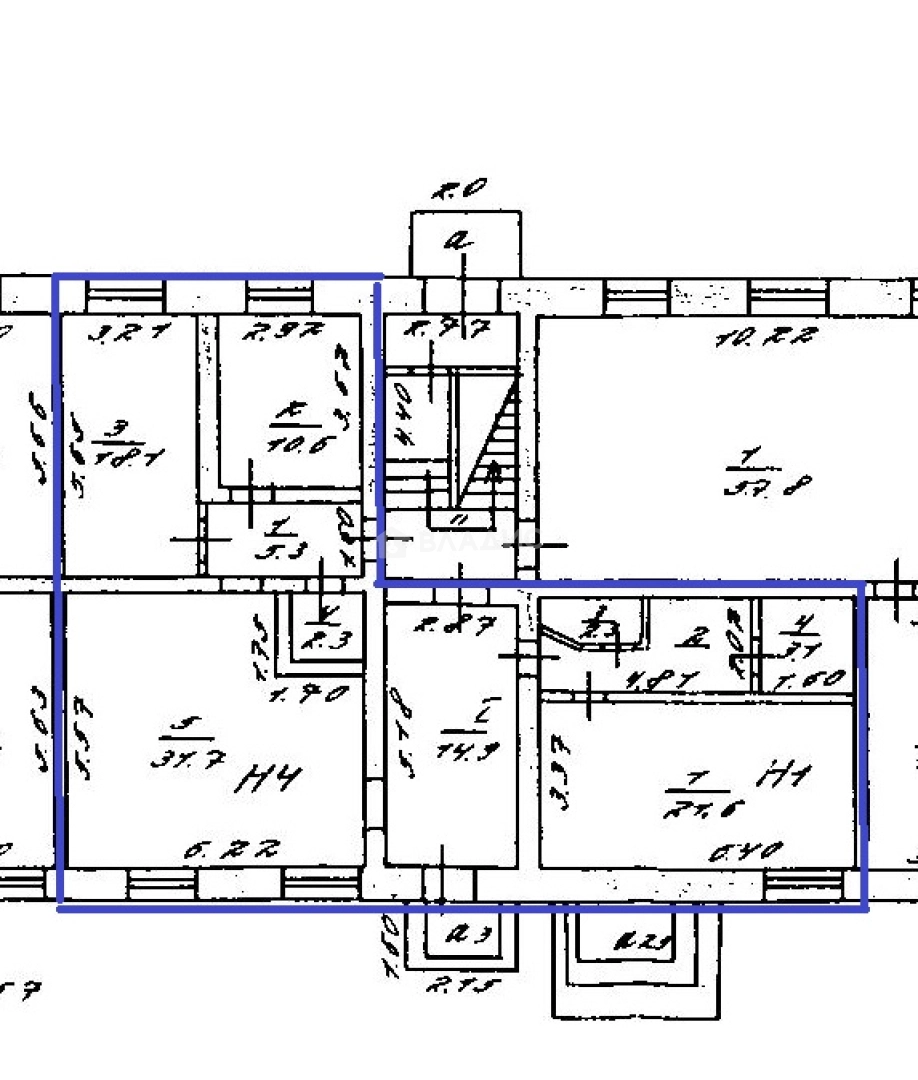
Продаём 2 коммерческих помещения свободного назначения общей площадью 118 кв. м
на 1-м этаже и на первой линии по адресу: Рязань, Первомайский проспект, 23.
Это выгодное предложение для бизнес-профессионалов и инвесторов, ищущих ликвидный объект с потенциалом для развития своего дела. Помещения имеют отдельный вход и свободный доступ, что обеспечивает удобство для клиентов и сотрудников.
Высота потолков 3 метра позволяет эффективно использовать пространство, а косметический ремонт создаёт приятные условия для работы. Установлены интернет, кондиционер, вентиляция и пожарная сигнализация, что соответствует современным требованиям к коммерческим объектам.
В каждом помещении свой с/у, что способствуют комфортному пребыванию в помещении.
Электрическая мощность 30 кВт (по 15 кВт в каждом помещении). Отопление центральное.
Удобное расположение на Первомайском проспекте рядом с остановкой общественного транспорта обеспечивает хорошую видимость и доступность для клиентов.
В радиусе 200 метров находятся торговые центры, офисы и другие объекты инфраструктуры, что создаёт благоприятные условия для развития бизнеса.
Наземная парковка рядом с зданием обеспечивает удобство для посетителей и сотрудников.
Срочная продажа по выгодной цене — это уникальная возможность для тех, кто хочет быстро начать свой бизнес или вложить средства в ликвидный объект.
Мы гарантируем безопасную сделку и юридическую поддержку нашим клиентам. Поможем одобрить ипотеку с сниженной ставкой.
Об объекте
Общая площадь
118 м²
Этаж
1
Высота потолков
3 м
Электрическая мощность
30 кВт
Раздельных санузлов
2
Ремонт
Косметический
Вход в помещение
Отдельный
Доступ в помещение
Свободный
Удобства
Интернет
Кондиционер
Вентиляция
Пожарная сигнализация
О здании
Тип коммерции
Street retail
Год постройки
1940
Материал постройки
Кирпичный
Отопление
Центральное
Этажей в доме
4
Парковка
Наземная
Расположение
Россия, Рязань, Первомайский проспект, 23
Ипотечный калькулятор
Заполните 1 анкету — получите предложения от десятков банков на специальных условиях
Программа ипотеки
Стоимость жилья, ₽
Первый взнос, ₽
Срок кредита
от 5.75%
Ставка
от 157 277 ₽
Платеж в месяц
Расчёт носит информационный характер и не является публичной офертой
Предложите свою цену
25 000 000 ₽
211 864 ₽/м²







