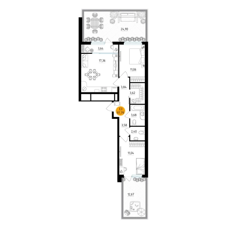
Продается 2-комн. квартира, 95.95 м²
Россия, Рязань, Михайловский район
95.95 м²
Общая площадь
21.12 м²
Жилая площадь
1 из 18
Этаж
Описание
Описания нет
О квартире
Общая площадь
95.95 м²
Жилая площадь
21.12 м²
Подъезд
3
Этаж
1
Окна выходят
На улицу
Ремонт
Без отделки
О доме
Год постройки
2028
Этажность
18
Количество подъездов
3
Материал постройки
Кирпичный
Материал перекрытий
Ж/б плиты
Отопление
Индивидуальный котел
Пассажирских лифтов
1
Грузовых лифтов
1
Парковка
Наземная
Расположение
Россия, Рязань, Михайловский район
Ипотечный калькулятор
Заполните 1 анкету — получите предложения от десятков банков на специальных условиях
Программа ипотеки
Стоимость жилья, ₽
Первый взнос, ₽
Срок кредита
от 5.75%
Ставка
от 46 873 ₽
Платеж в месяц
Расчёт носит информационный характер и не является публичной офертой
Похожие объекты
Консультант по новостройкам
7 450 585 ₽
77 651 ₽/м²









