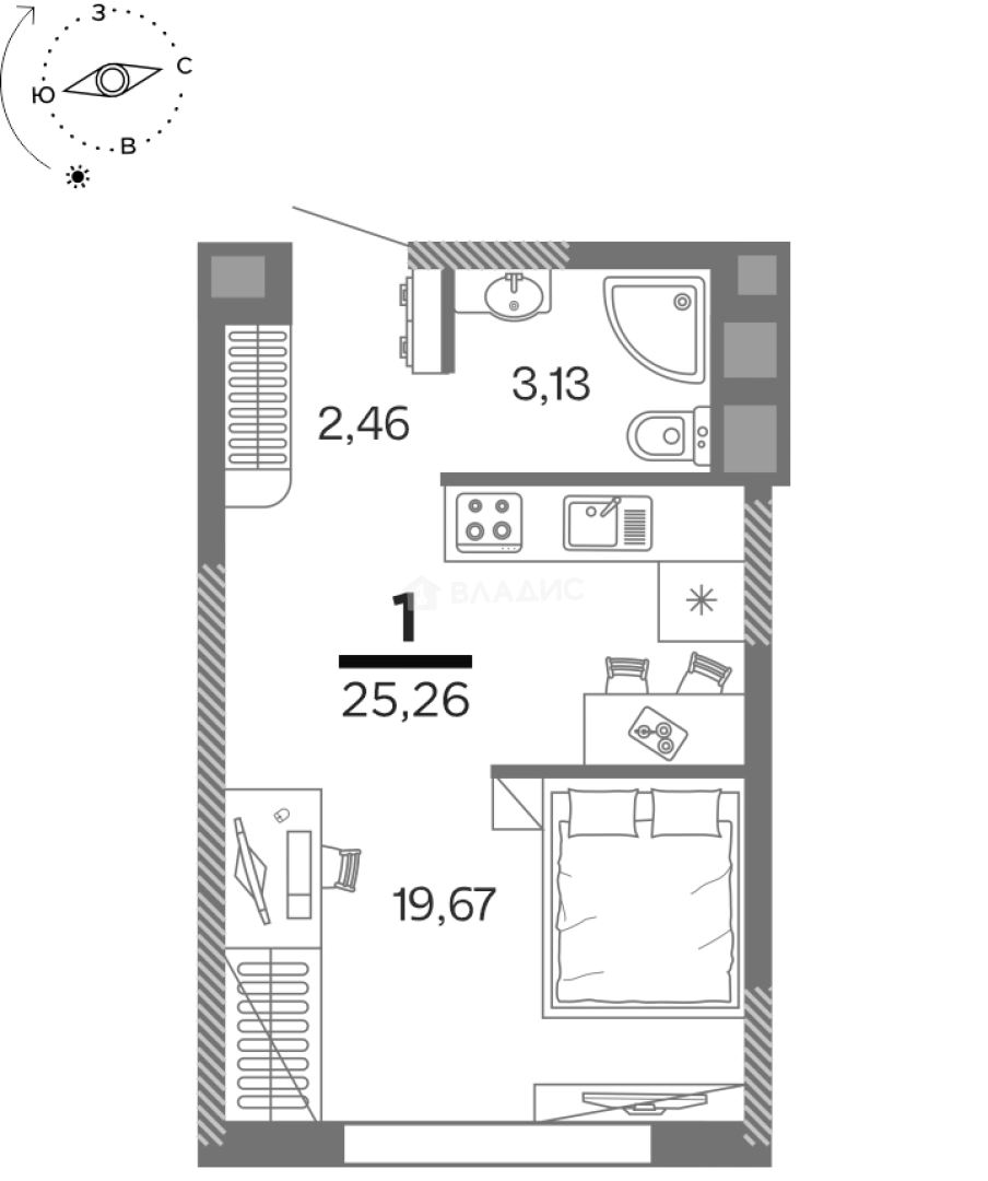
Продается 1-комн. квартира, 25.26 м²
Россия, Рязань, район Мервино, территория Метропарк
25.26 м²
Общая площадь
19.67 м²
Жилая площадь
2 из 25
Этаж
Описание
Это город в городе, который не подстраивается под старые рамки, а задает новую планку и
стандарт жилого района.
ЖК «Метропарк» - микрорайон с развитой инфраструктурой. Обильное озеленение, прогулочные
аллеи, детские игровые комплексы, спортивная площадка, близость к природе и собственной
набережной. Закрытая территория комплекса оборудована видеонаблюдением и Wi-Fi.
Проект расположен на Московском шоссе в пяти минутах ходьбы от ТРЦ «Премьер», «МЕТРО» и
центрального автовокзала.
ВАША ТЕРРИТОРИЯ
ЖК «Метропарк» - это огромная благоустроенная территория с собственным парком и набережной.
Это променад в 1000 метров для прогулок и отдыха. Инфрастуктура не имеет аналогов в городе.
Территория внутри микрорайона - это уникальное общественное пространство для досуга всей
семьи: рукотворный ландшафт, малые архитектурные формы и дорожки для велосипедистов.
С заботой о детях: во дворе будет установлено игровое оборудование известных европейских
марок. На таких площадках играют дети по всему миру, потому что они оригинальные,
развивающие, экологичные и безопасные. Оборудование способствует развитию ребенка, знакомят
его с законами физики и развивают ловкость.
О квартире
Общая площадь
25.26 м²
Жилая площадь
19.67 м²
Подъезд
2
Этаж
2
Окна выходят
На улицу
О доме
Год постройки
2026
Этажность
25
Количество подъездов
2
Материал постройки
Монолитный
Материал перекрытий
Ж/б плиты
Отопление
Своя котельная
Грузовых лифтов
1
Парковка
Наземная
Расположение
Россия, Рязань, район Мервино, территория Метропарк
Ипотечный калькулятор
Заполните 1 анкету — получите предложения от десятков банков на специальных условиях
Программа ипотеки
Стоимость жилья, ₽
Первый взнос, ₽
Срок кредита
от 5.75%
Ставка
от 24 354 ₽
Платеж в месяц
Расчёт носит информационный характер и не является публичной офертой
Похожие объекты
Консультант по новостройкам
3 871 150 ₽
153 253 ₽/м²




































