Продается 1-комн. квартира, 32.62 м²
Россия, Рязань, микрорайон Олимпийский Городок, жилой комплекс Северный
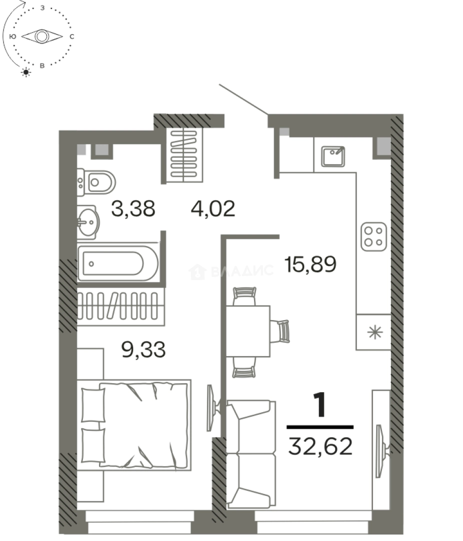
32.62 м²
Общая площадь
9.33 м²
Жилая площадь
15.89 м²
Площадь кухни
25 из 26
Этаж
Описание
Жилой комплекс «Северный» - это современный квартал, который объединяет в себе
прогрессивные решения города и уют загородной жизни. В самом масштабном проекте «Северной
Компании» вы найдете все условия для полноценной жизни вас и ваших детей в окружении зелени
и естественных водоемов.
Инновационный подход прослеживается в каждой детали – от широких улиц и скверов между
корпусами до наличия всей необходимой инфраструктуры на территории и вблизи комплекса.
А для самых маленьких жителей на территории комплекса функционирует детский сад и детский
центр. Со временем дошкольное и школьное образование станет еще доступнее – на территории
комплекса ведется строительство общеобразовательной школы на 1100 мест.
В ближайшей доступности:
• ДС «Олимпийский» – 14 минут пешком;
• городская больница №11 – 10 минут на автомобиле;
• пляж, где вы можете отдыхать с семьей и друзьями – 8 минут пешком;
• детский сад №37 и детский центр «Любознайка» – 5 минут пешком.
БЕЗОПАСНЫЕ И КОМФОРТНЫЕ ДВОРЫ
На территории дома предусмотрена наземная открытая парковка, прилегающая ко двору.
Благодаря концепции «двор без машин» вы можете быть спокойны и за безопасность детей, и за
свои автомобили.
В настоящее время в комплексе действует контрольно-пропускной режим, въезд и выезд
осуществляется через шлагбаум. В скором времени планируется возведение общего ограждения
жилого комплекса со стороны частного сектора и озер. Снаружи и внутри дома установлена
система видеонаблюдения.
ПРЕДЧИСТОВАЯ ОТДЕЛКА КВАРТИР
Все квартиры будут сданы с предчистовой отделкой, что позволит ускорить процесс ремонта, ведь
вам не придется тратить время на дополнительные работы по выравниванию стен, полов и
потолков.
Для вашего комфорта предусмотрена шумоизоляция по системе «плавающий пол», благодаря
которой не будет слышно посторонних звуков от соседей.
Для дома предусмотрена отдельная крышная котельная, которая обеспечит автономность и
независимость от централизованного отопления. Вы сможете самостоятельно регулировать
температуру в квартире и экономить на коммунальных платежах.
О квартире
Общая площадь
32.62 м²
Жилая площадь
9.33 м²
Площадь кухни
15.89 м²
Подъезд
1
Этаж
25
Окна выходят
На улицу
О доме
Год постройки
2027
Этажность
26
Количество подъездов
1
Материал постройки
Монолитный
Материал перекрытий
Ж/б плиты
Отопление
Своя котельная
Грузовых лифтов
1
Парковка
Наземная
Расположение
Россия, Рязань, микрорайон Олимпийский Городок, жилой комплекс Северный
Ипотечный калькулятор
Заполните 1 анкету — получите предложения от десятков банков на специальных условиях
Программа ипотеки
Стоимость жилья, ₽
Первый взнос, ₽
Срок кредита
от 5.75%
Ставка
от 28 542 ₽
Платеж в месяц
Расчёт носит информационный характер и не является публичной офертой
Похожие объекты



1-комн. квартира, 32,1 м², 13/26 эт.



1-комн. квартира, 35,5 м², 24/26 эт.



1-комн. квартира, 32,1 м², 2/26 эт.
Консультант по новостройкам
4 536 870 ₽
139 083 ₽/м²






















