Продается 2-комн. квартира, 78.9 м²
Россия, Рязань, Введенская улица, 115
78.9 м²
Общая площадь
31.2 м²
Жилая площадь
18.5 м²
Площадь кухни
10 из 10
Этаж
Описание
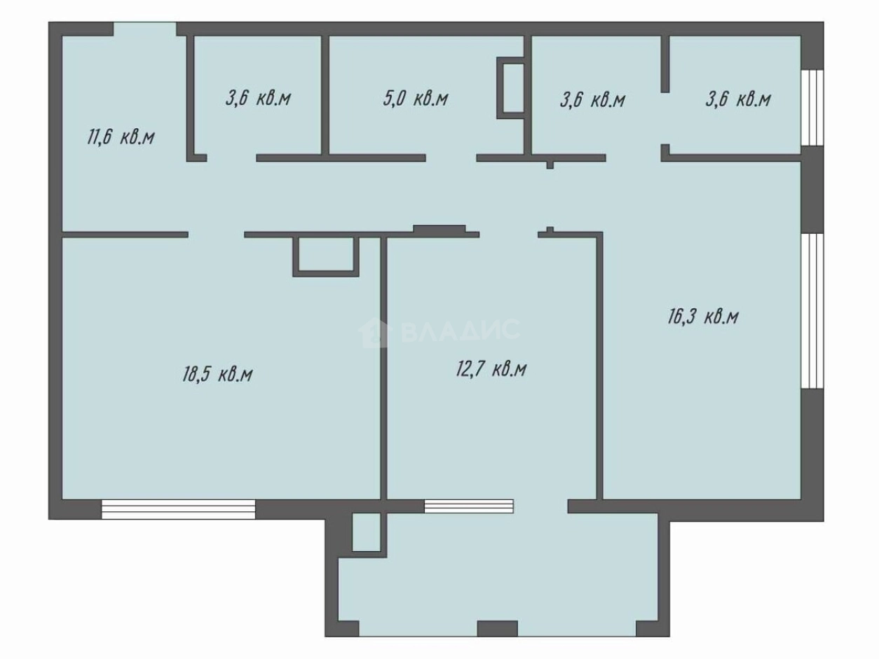
18,5 кв.м. кухня-гостиная, два санузла - один с/у из мастер -спальни (с окном), две просторные комнаты, гардеробная. Высота потолков -3,05м.
Отопление - индивидуальное, собственный котел - экономия по коммунальным платежам и комфортная температура по всей квартире в любое время года!
ЖК Мичурин.
Единственный панорамный (полностью панорама из всех комнат и кухни-гостиной) этаж в доме!
Квартира, оставшаяся в состоянии "от застройщика" и ждущая только Вас.
Вы сможете воплотить все свои самые смелые фантазии. Удобная локация и "умная" смарт- планировка.
Квартира расположена в живописном районе Рязани. Дом построен в 2021 году. Закрытая охраняемая территория, двор без машин ( реально без машин) . Видеонаблюдение по всему периметру, лифте, всем этажам, охрана . Детские площадки и спорт-площадки во дворе , стилобат для детей и место отдыха взрослых на уровне третьего этажа. Это идеальное место для комфортной и безопасной жизни!
Высота потолков — 3,05 м.
Квартира без отделки, вы сможете реализовать свои дизайнерские идеи и создать интерьер мечты.
Не упустите возможность приобрести эту последнюю квартиру без ремонта в доме высокого класса ! Рядом улицы Ленина, Маяковского, Горького, Вознесенского, Либхнехта, Щедрина, Садовая,Полонского, Есенина . Пешком можно дойти до всех театров города, развлекательных центров и Педагогического университета, Администрации города, Атрон сити, Акапулько (с бассейном) и др .
Мы гарантируем безопасную сделку и юридическую поддержку нашим Клиентам.
Поможем одобрить ипотеку с сниженной ставкой.
В доме полный порядок - за 3 года большинство квартир уже закончили ремонт и счастливо живут.
Дом уже "отстоялся" и Вы сможете сделать супер - дорогую отделку, не боясь "усадки" дома и потрескавшихся стен.
Перекресток, кофейня, пекарня, и т.д. - в доме .
Звоните нам прямо сейчас, чтобы узнать больше о квартире и договориться о просмотре!
О квартире
Общая площадь
78.9 м²
Жилая площадь
31.2 м²
Площадь кухни
18.5 м²
Площадь комнат
18,5+12,7 м²
Высота потолков
3.05 м
Подъезд
5
Этаж
10
Расположение квартиры
не угловая
Окна выходят
Во двор
Раздельных санузлов
2
О доме
Год постройки
2021
Этажность
10
Количество подъездов
8
Материал постройки
Кирпичный
Материал перекрытий
Ж/б плиты
Отопление
Индивидуальный котел
Пассажирских лифтов
1
Грузовых лифтов
1
Парковка
Наземная
Огороженная территория
Да
Расположение
Россия, Рязань, Введенская улица, 115
Ипотечный калькулятор
Заполните 1 анкету — получите предложения от десятков банков на специальных условиях
Программа ипотеки
Стоимость жилья, ₽
Первый взнос, ₽
Срок кредита
от 5.75%
Ставка
от 81 784 ₽
Платеж в месяц
Расчёт носит информационный характер и не является публичной офертой
Предложите свою цену
13 000 000 ₽
164 766 ₽/м²


















































































