Продается 3-комн. квартира, 121.86 м²
Россия, Рязань, Мещёрская улица, 24/12
121.86 м²
Общая площадь
62.6 м²
Жилая площадь
21.46 м²
Площадь кухни
2 из 3
Этаж
Описание
Ключи в день сделки!
Уникальная возможность приобрести шикарные двухуровневые апартаменты,
в престижном комплексе " МЕЩЕРА" в лесу, в окружении вековых сосен!
Дом находится в курортном поселке Солотча - одно из самых живописных мест Рязанской области.
Это прекрасная альтернатива загородному дому!
Высочайший уровень комфорта в новом доме!
Малоэтажное строение, кирпичные фасады,
индивидуальное отопление.
Бесшумные лифты. Собственная скважина с чистой водой.
Шумоизоляция, теплосберегающие и винтажные окна.
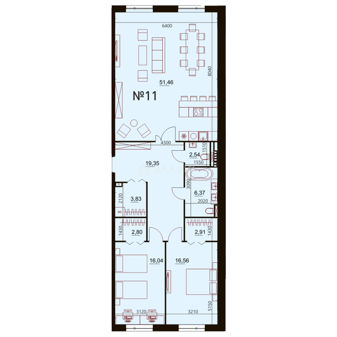
Вместительная прихожая 19.36 кв.м с гардеробной 3.83 кв.м
Внушительных размеров кухня-гостиная 51.46 кв.м, позволяющая зонировать пространство
и реализовать любые дизайнерские идеи.
Две спальные комнаты 16.04 кв. м и 16.56 кв.м с гардеробными помещениями по 3 метра.
Два раздельных санузла 6.37 кв.м и 2.54 кв.м
Благодаря панорамным окнам, открывается великолепный вид на сосновый лес!
На территории детские площадки, вокруг сосновый лес, рядом река.
Прекрасное экологическое место как для отдыха и так же для проживания.
В непосредственной близости находятся спортивные и развлекательные комплексы,
аквапарки, здравницы, магазины, кафе и рестораны.
Возможна рассрочка!
ЗВОНИТЕ СЕЙЧАС!
О квартире
Общая площадь
121.86 м²
Жилая площадь
62.6 м²
Площадь кухни
21.46 м²
Площадь комнат
62.6 м²
Высота потолков
3 м
Подъезд
1
Этаж
2
Расположение квартиры
не угловая
Окна выходят
На улицу, Во двор
Раздельных санузлов
2
О доме
Год постройки
2023
Этажность
3
Количество подъездов
2
Материал постройки
Кирпичный
Материал перекрытий
Ж/б плиты
Отопление
Своя котельная
Пассажирских лифтов
1
Парковка
Наземная
Огороженная территория
Да
Расположение
Россия, Рязань, Мещёрская улица, 24/12
Ипотечный калькулятор
Заполните 1 анкету — получите предложения от десятков банков на специальных условиях
Программа ипотеки
Стоимость жилья, ₽
Первый взнос, ₽
Срок кредита
от 5.75%
Ставка
от 113 240 ₽
Платеж в месяц
Расчёт носит информационный характер и не является публичной офертой
18 000 000 ₽
147 710 ₽/м²










