Продается 2-комн. квартира, 70 м²
Россия, Рязань, 1-й Осенний переулок, 1
70 м²
Общая площадь
38.5 м²
Жилая площадь
11.3 м²
Площадь кухни
1 из 10
Этаж
Описание
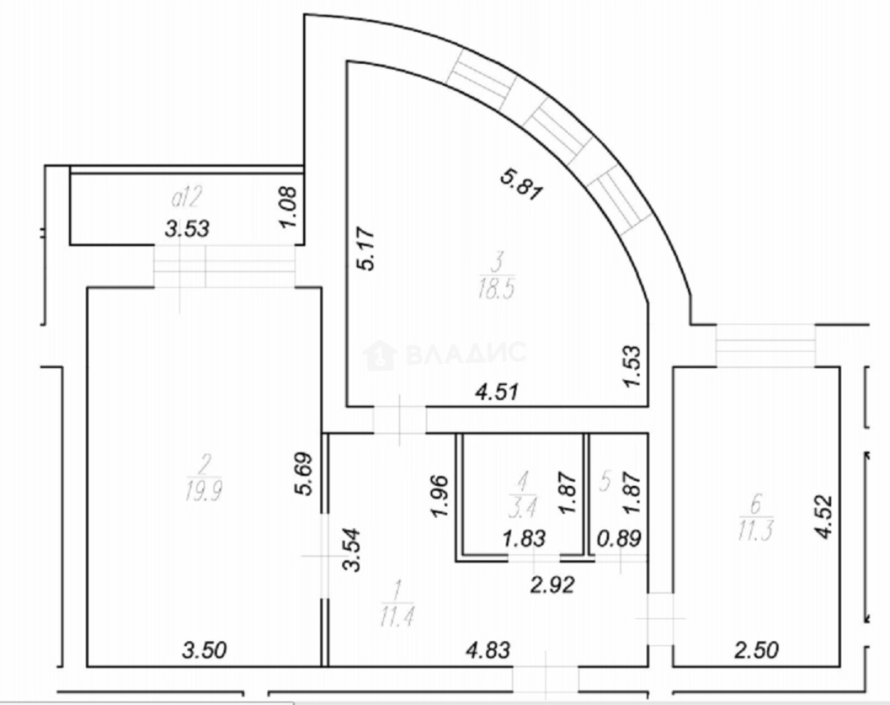
Продается двухкомнатная квартира на 1 этаже (высокий цоколь) современного 10-ти этажного Кирпичного дома, построенного в 2008 году. Не угловая, с/у раздельный, комнаты изолированные, интересная планировка.
Общая площадь квартиры: 66,2 кв.м. + 3,8 кв.м. застекленная лоджия; просторные комнаты 20+18,5 кв.м.; кухня 11,3 кв.м.
Окна и трубы ПВХ, в коридоре и кухне на полу плитка, установлены сан приборы.
Состояние квартиры предоставляет вам свободу для реализации собственных дизайнерских идей.
Отличная возможность для тех, кто хочет создать уютное и комфортное пространство на свой вкус.
Дополнительно имеются кладовая на этаже и в подвале.
Прямая продажа, один взрослый собственник, никто не зарегистрирован, без долгов и обременений, полная стоимость в договоре.
Отличная локация: Центр города, пл.Ленина, ул.Чапаева, ул.Дзержинского, ул.Татарская, ул.Маяковского, Лыбедский бульвар, Центральный рынок.
Не упустите шанс стать владельцем квартиры, в которую вы сможете вложить душу и сделать её своей. Это предложение срочное, и такие квартиры расходятся быстро! Позвоните нам прямо сейчас, чтобы записаться на просмотр и узнать больше о данном объекте. Мы гарантируем безопасную сделку и юридическую поддержку нашим Клиентам.
О квартире
Общая площадь
70 м²
Жилая площадь
38.5 м²
Площадь кухни
11.3 м²
Площадь комнат
20+18,5 м²
Этаж
1
Расположение квартиры
не угловая
Окна выходят
Во двор
Раздельных санузлов
1
Ремонт
Без отделки
Лоджия
Есть
О доме
Год постройки
2008
Этажность
10
Количество подъездов
5
Материал постройки
Кирпичный
Материал перекрытий
Ж/б плиты
Отопление
Центральное
Пассажирских лифтов
1
Парковка
Наземная
5 790 000 ₽
82 714 ₽/м²




















