Продается 2-комн. квартира, 47.4 м²
Россия, Рязань, Московский район, улица Крупской, 14к1
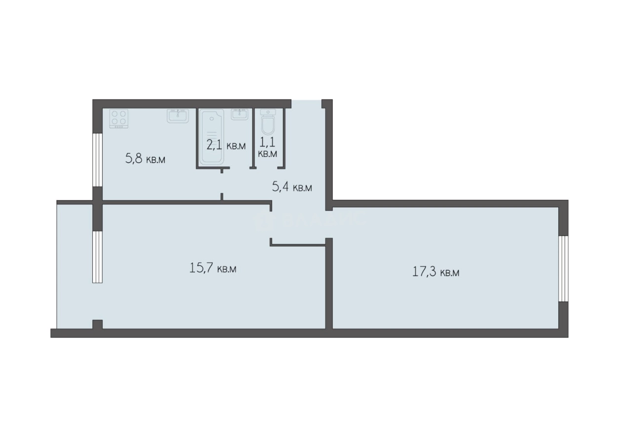
47.4 м²
Общая площадь
33 м²
Жилая площадь
5.8 м²
Площадь кухни
1 из 5
Этаж
Описание
Удобная транспортная развязка, лёгкий доступ к основным магистралям города.
Общая площадь — 47,4 кв. м, жилая — 33 кв. м, площадь кухни — 5,8 кв. м. Комнаты изолированы, что обеспечивает комфорт и уединение.
Развитая инфраструктура района, близость к магазинам, школам, детским садам. Всё, что нужно для комфортной жизни, находится в шаговой доступности.
Квартира идеально подойдёт для молодых специалистов, студентов, семей с детьми и пар без детей.
Мы гарантируем безопасную сделку и юридическую поддержку нашим Клиентам. Поможем одобрить ипотеку с сниженной ставкой.
О квартире
Общая площадь
47.4 м²
Жилая площадь
33 м²
Площадь кухни
5.8 м²
Площадь комнат
15.7+17.3 м²
Подъезд
4
Этаж
1
Расположение квартиры
не угловая
Окна выходят
На улицу, Во двор
Раздельных санузлов
1
Ремонт
Старый ремонт
О доме
Год постройки
1971
Этажность
5
Количество подъездов
6
Материал постройки
Панельный
Материал перекрытий
Ж/б плиты
Отопление
Центральное
Парковка
Наземная
Расположение
Россия, Рязань, Московский район, улица Крупской, 14к1
Ипотечный калькулятор
Заполните 1 анкету — получите предложения от десятков банков на специальных условиях
Программа ипотеки
Стоимость жилья, ₽
Первый взнос, ₽
Срок кредита
от 5.75%
Ставка
от 18 245 ₽
Платеж в месяц
Расчёт носит информационный характер и не является публичной офертой
Похожие объекты
Предложите свою цену
2 900 000 ₽
61 181 ₽/м²






















































