Продается 2-комн. квартира, 51.4 м²
Россия, Рязань, район Приокский, Магистральная улица, 20
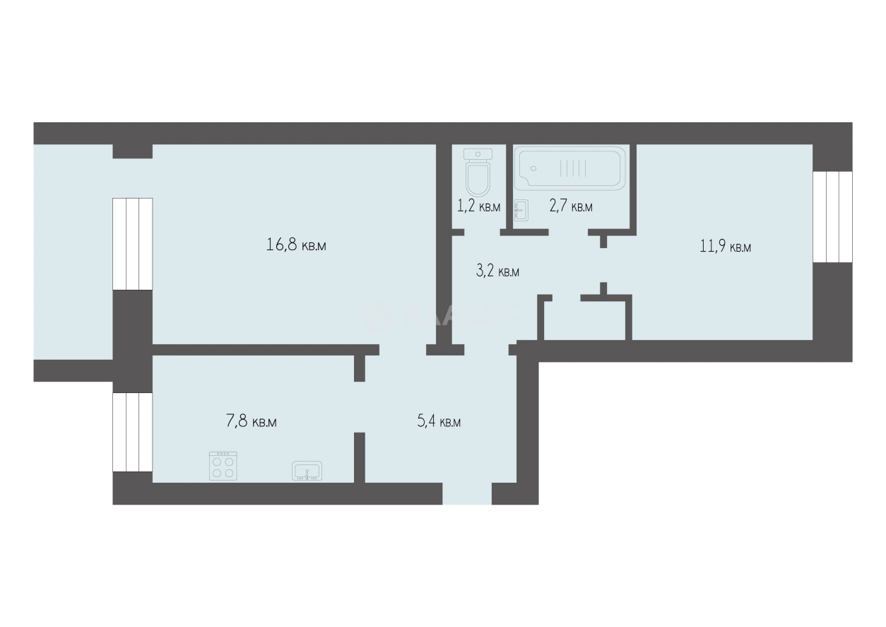
51.4 м²
Общая площадь
28.7 м²
Жилая площадь
7.8 м²
Площадь кухни
5 из 5
Этаж
Описание
✅Выполнен качественный ремонт, установлены пластиковые окна, радиаторы и проводка поменяны, что позволит вам сразу заселиться и наслаждаться новым жильём без дополнительных вложений. Так же установлен водонагреватель, который обеспечит вас горячей водой круглый год. Мебель остается новым владельцам.
✅Расположение квартиры идеально подходит для семей с детьми: тихий район, рядом находятся школы и детские сады, множество магазинов, неподалеку рынок и кафе, удобная транспортная доступность. Для прогулок замечательный парк с детской площадкой в пяти минутах ходьбы.
✅Один взрослый собственник, без обременений. В собственности более 5 лет. Готовы выйти на сделку в кратчайшие сроки.
✅Не упустите свой шанс стать владельцем этой замечательной квартиры! Вы получаете гарантию безопасной сделки и юридическую поддержку, а так же помощь в одобрении ипотеки с пониженной ставкой. Записывайтесь на просмотр и убедитесь во всём сами!
О квартире
Общая площадь
51.4 м²
Жилая площадь
28.7 м²
Площадь кухни
7.8 м²
Площадь комнат
16,8+11,9 м²
Высота потолков
2.5 м
Подъезд
3
Этаж
5
Расположение квартиры
не угловая
Окна выходят
На улицу, Во двор
Раздельных санузлов
1
О доме
Год постройки
1987
Этажность
5
Количество подъездов
6
Материал постройки
Кирпичный
Материал перекрытий
Ж/б плиты
Отопление
Центральное
Парковка
Наземная
Расположение
Россия, Рязань, район Приокский, Магистральная улица, 20
Ипотечный калькулятор
Заполните 1 анкету — получите предложения от десятков банков на специальных условиях
Программа ипотеки
Стоимость жилья, ₽
Первый взнос, ₽
Срок кредита
от 5.75%
Ставка
от 27 681 ₽
Платеж в месяц
Расчёт носит информационный характер и не является публичной офертой
Предложите свою цену
4 400 000 ₽
85 603 ₽/м²













































































