Продается 1-комн. квартира, 30.9 м²
Россия, Рязань, район Дягилево, Забайкальская улица, 17
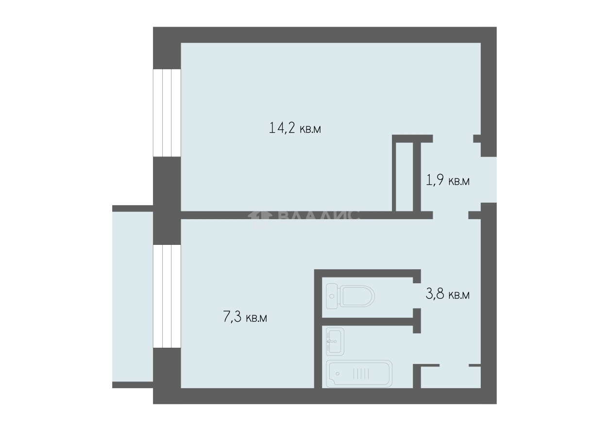
30.9 м²
Общая площадь
14 м²
Жилая площадь
7.3 м²
Площадь кухни
3 из 5
Этаж
Описание
Кухня - 7,3 кв.м.
3-й этаж!
Санузел раздельный.
Балкон застеклен.
Окна выходят во двор.
Двор зеленый, рядом парк.
Чистый подъезд без посторонних запахов.
Расположение квартиры хорошее - рядом есть всё необходимое для комфортной жизни: парк, магазины, школы, детские сады и спортивные площадки, остановки.
Возможен вариант обмена с доплатой на двух- или трехкомнатную квартиру в этом районе.
Мы гарантируем безопасную сделку и юридическую поддержку нашим Клиентам. Поможем одобрить ипотеку с сниженной ставкой. Позвоните нам прямо сейчас, чтобы узнать больше!
О квартире
Общая площадь
30.9 м²
Жилая площадь
14 м²
Площадь кухни
7.3 м²
Площадь комнат
14 м²
Подъезд
1
Этаж
3
Расположение квартиры
не угловая
Окна выходят
Во двор
Раздельных санузлов
1
Ремонт
Старый ремонт
О доме
Год постройки
1975
Этажность
5
Материал постройки
Панельный
Материал перекрытий
Ж/б плиты
Отопление
Центральное
Парковка
Наземная
Расположение
Россия, Рязань, район Дягилево, Забайкальская улица, 17
Ипотечный калькулятор
Заполните 1 анкету — получите предложения от десятков банков на специальных условиях
Программа ипотеки
Стоимость жилья, ₽
Первый взнос, ₽
Срок кредита
от 5.75%
Ставка
от 13 841 ₽
Платеж в месяц
Расчёт носит информационный характер и не является публичной офертой
Предложите свою цену
2 200 000 ₽
71 197 ₽/м²













