Продается 2-комн. квартира, 64.4 м²
Россия, Рязань, Славянский проспект, 5
64.4 м²
Общая площадь
35.3 м²
Жилая площадь
13.2 м²
Площадь кухни
10 из 10
Этаж
Описание
Шикарная суперсовременная планировка для воплощения ваших смелых фантазий)
Площадь квартиры 64,4 кв.м, без учёта лоджии!
- Квартира с ремонтом, что дает вам возможность заехать и жить
- Очень тёплая и светлая
- Отопление индивидуальное, что существенно сэкономит семейный бюджет
- Планировка смежно-изолированная, кухня-гостиная, при желании можно сделать изолированную комнату
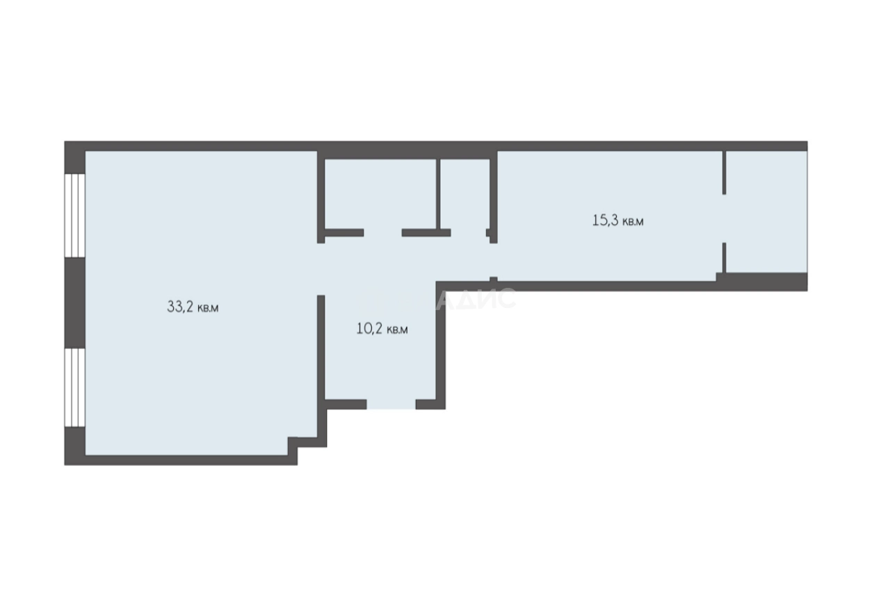
- Большая кухня-гостиная 33,2 кв.м
- Раздельный санузел
- Уютная спальня 15,3 кв.м
- Закрытая территория
- Оборудованы детские площадки
- Адекватные соседи - Чистый подъезд
- Хорошая УК
Всё самое необходимое находится в пешей доступности:
- Школы: 5 гимназия, 2, 33, 34, 37, 64
- Детские сады: «Знайка», «Белочка», «Елочка», «Забава», «Гнездышко», 160, 12, 81, 99, «Сказка», «Журавлик», «Пушкинский»
- Бассейн «Радиоволна», спортивный комплекс «Буревестник», Центральный спортивный комплекс
- Рязанский медицинский колледж, Рязанский строительный колледж, Рязанский технологический колледж, Рязанский педагогический колледж, Рязанский политехнический колледж
- Рязанский Государственный Радиотехнический Университет им. В.Ф. Уткина
- Множество магазинов
- БСМП, Рязанский областной клинический кардиологический диспансер
- Поликлиника и аптеки
- Дворец молодежи г. Рязани
- ТЦ Полетаевский, ТЦ Ёж, Ярмарка выходного дня
- Остановка общественного транспорта
- Центральный парк культуры и отдыха
- Рязанский государственный медицинский университет им. академика И.П. Павлова
Отличная квартира для дружной семьи и молодых людей!
- Проверяем объекты на юридическую чистоту
- Готовим документы по сделке
- Получаем одобрение по ипотеке
- Предлагаем безопасную систему расчетов
Более 34 лет мы работаем и совершенствуемся, чтобы клиенты УК «Центральное агентство недвижимости» были уверены в каждой сделке. Звоните, и я с удовольствием отвечу на Ваши вопросы!
О квартире
Общая площадь
64.4 м²
Жилая площадь
35.3 м²
Площадь кухни
13.2 м²
Площадь комнат
15,3+20 м²
Высота потолков
2.7 м
Подъезд
4
Этаж
10
Расположение квартиры
не угловая
Окна выходят
На улицу
Раздельных санузлов
1
О доме
Год постройки
2015
Этажность
10
Количество подъездов
5
Материал постройки
Кирпичный
Материал перекрытий
Ж/б плиты
Отопление
Индивидуальный котел
Грузовых лифтов
1
Парковка
Подземная
Огороженная территория
Да
Расположение
Россия, Рязань, Славянский проспект, 5
Ипотечный калькулятор
Заполните 1 анкету — получите предложения от десятков банков на специальных условиях
Программа ипотеки
Стоимость жилья, ₽
Первый взнос, ₽
Срок кредита
от 5.75%
Ставка
от 52 657 ₽
Платеж в месяц
Расчёт носит информационный характер и не является публичной офертой
Предложите свою цену
8 370 000 ₽
129 969 ₽/м²























































