Продается 2-комн. квартира, 70 м²
Россия, Рязань, Вишнёвая улица, 25
70 м²
Общая площадь
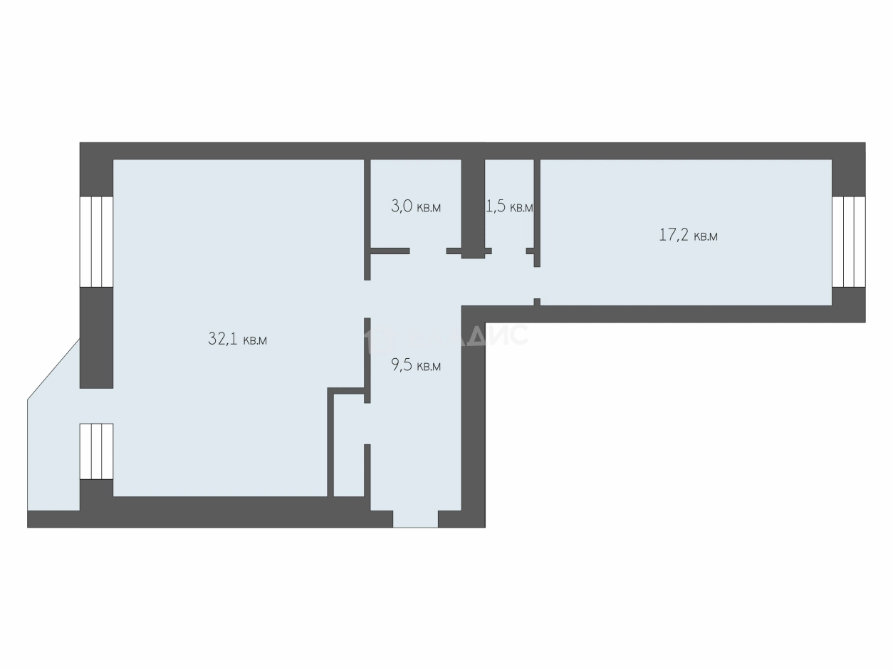
17.2 м²
Жилая площадь
32.1 м²
Площадь кухни
7 из 10
Этаж
Описание
Отличная планировка!
Большая кухня- гостиная- 32,1 кв .м, просторная спальня-17,2 кв.м. Выполнен качественный ремонт- для себя! Квартира полностью готова к проживанию!
Дом кирпичный-2014года постройки, толщина стены-65 см делает квартиру очень теплой, индивидуальное отопление позволяет существенно экономить на коммунальных платежах!
Закрытая территория!!
Удобное место расположения, в шаговой доступности остановки общественного транспорта: "7-й Мервинский проезд" Автобусы №7, №7А, №47 Маршрутное такси: №95, №42. "Автовокзал центральный" Автобусы: 24, 27, 30, 41, 50, 53, 66, 68, 71, 73, 75, 88. Маршрутное такси: 58, 46. Троллейбусы: 1, 9, 10, 16. Рядом ТЦ Премьер, Метро, Агротехнологический университет, Больница №10, банки/банкоматы, Киоски с автоматизированной подачей артезианской воды "Ключ здоровья", магазины торговых сетей Магнит, Пятёрочка, Чижик и др., аптеки, школа, детские сады, фитнес-центр FIT HOME, ARTA GYM, салоны красоты, пункты выдачи интернет-магазинов WILDBERRIES, OZON, Яндекс маркет и многое другое...
Компания предоставляет полное юридическое сопровождение, помощь в оформлении ипотеки ,гарантирует чистоту сделки и безопасность расчётов.
Звоните!
О квартире
Общая площадь
70 м²
Жилая площадь
17.2 м²
Площадь кухни
32.1 м²
Площадь комнат
8+9,2 м²
Подъезд
1
Этаж
7
Расположение квартиры
не угловая
Окна выходят
На улицу, Во двор
Раздельных санузлов
1
Ремонт
Евро
О доме
Год постройки
2014
Этажность
10
Материал постройки
Кирпичный
Материал перекрытий
Ж/б плиты
Отопление
Индивидуальный котел
Пассажирских лифтов
1
Парковка
Наземная
Огороженная территория
Да
Расположение
Россия, Рязань, Вишнёвая улица, 25
Ипотечный калькулятор
Заполните 1 анкету — получите предложения от десятков банков на специальных условиях
Программа ипотеки
Стоимость жилья, ₽
Первый взнос, ₽
Срок кредита
от 5.75%
Ставка
от 49 071 ₽
Платеж в месяц
Расчёт носит информационный характер и не является публичной офертой
Похожие объекты
Предложите свою цену
7 800 000 ₽
111 429 ₽/м²















































































































































