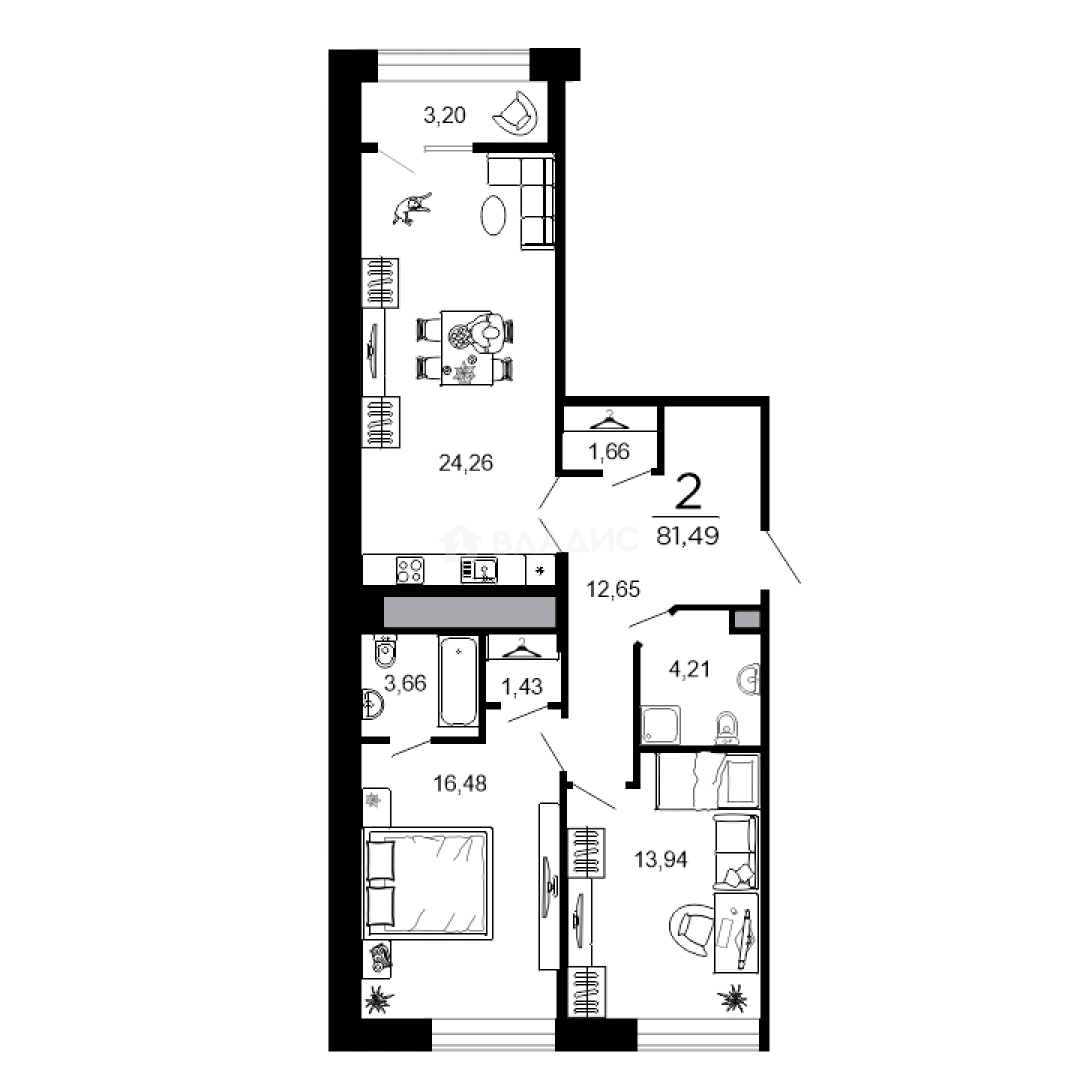
Продается 2-комн. квартира, 81.49 м²
Россия, Рязань, жилой дом Вега
81.49 м²
Общая площадь
30.42 м²
Жилая площадь
24.26 м²
Площадь кухни
7 из 19
Этаж
Описание
Пространство с супермаркетами, фитнес-залами, остановками и тем, что важно для повседневной жизни. На пути с работы можете взять кофе на вынос и пройтись по центру города, наслаждаясь погодой или сразу направиться на своём авто в отапливаемый паркинг. Выбор за вами. Главное, что мы создаем место, отделенное от городской суеты для вас – жителей центра.
Оборудованные детские и спортивные площадки не оставят равнодушными даже самых маленьких жителей дома. Безопасный двор без машин убережет родителей от лишнего беспокойства.
Уникальная локация позволит ощутить себя одновременно и в центре событий, и в окружении исключительного комфорта.
О квартире
Общая площадь
81.49 м²
Жилая площадь
30.42 м²
Площадь кухни
24.26 м²
Подъезд
3
Этаж
7
Окна выходят
На улицу
О доме
Год постройки
2027
Этажность
19
Количество подъездов
3
Материал постройки
Монолитный
Материал перекрытий
Ж/б плиты
Отопление
Индивидуальный котел
Грузовых лифтов
1
Парковка
Подземная
Расположение
Россия, Рязань, жилой дом Вега
Ипотечный калькулятор
Заполните 1 анкету — получите предложения от десятков банков на специальных условиях
Программа ипотеки
Стоимость жилья, ₽
Первый взнос, ₽
Срок кредита
от 5.75%
Ставка
от 85 131 ₽
Платеж в месяц
Расчёт носит информационный характер и не является публичной офертой
Похожие объекты
Консультант по новостройкам
13 531 994 ₽
166 058 ₽/м²






































