Продается 3-комн. квартира, 81.9 м²
Россия, Рязань, район Приокский, Октябрьская улица, 33
81.9 м²
Общая площадь
47.9 м²
Жилая площадь
11.8 м²
Площадь кухни
8 из 10
Этаж
Описание
Продаётся трёхкомнатная квартира площадью 81,9 кв. м на восьмом этаже десятиэтажного кирпичного дома 2011 года постройки.
Дом расположен в районе Приокский по адресу Октябрьская улица, 33.
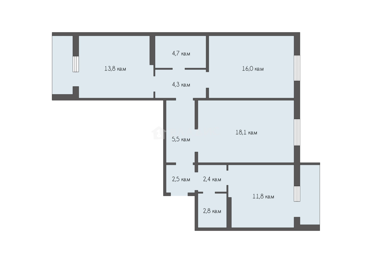
Квартира имеет удобную планировку с изолированными комнатами (18,1 + 16 + 13,8 кв. м), кухня 11,8 кв. м
Высота потолков - 2,7 м.
Отопление - оплата по общедомовому счетчику.
Стоимость отопительного сезона в среднем 4 500 -5000 рублей в месяц.
Квартира приобретена от застройщика, с 2012 года в собственности у одной семьи.
Отличная планировка!
Окна выходят на разные стороны.
В квартире два санузла.
Две лоджии. (3 ,5 + 3,5 кв. м)
Косметический ремонт позволяет новым владельцам заехать и жить.
Много парковочных мест. Кухонный гарнитур и варочная панель остается в квартире.
Расположение квартиры — одно из её главных преимуществ. В шаговой доступности зеленая зона - Парк отдыха им Ю.А. Гагарина.
Хорошая транспортная доступность позволяет быстро добраться до любой точки города.
- детский сад "Теремок", "Матрешка", "Капитошка" "Дельфин", №104, №79;
- школа №40, №48, №45, Лицей №52;
- поликлиника;
-ДК Приокский;
-рынок Приокский;
Мы гарантируем безопасную сделку, которая включает следующие услуги:
-Проверка объекта на юридическую чистоту
-Подготовка документов по сделке
-Подбор объекта недвижимости по Вашему запросу
-Одобрение по ипотеке, в том числе и льготные программы
-Безопасная система расчётов
Более 34-х лет мы работаем и совершенствуемся, чтобы клиенты УК "Центральное Агентство Недвижимости" были уверены в каждой сделке!
О квартире
Общая площадь
81.9 м²
Жилая площадь
47.9 м²
Площадь кухни
11.8 м²
Площадь комнат
18,1+16+13,8 м²
Высота потолков
2.7 м
Подъезд
1
Этаж
8
Расположение квартиры
не угловая
Окна выходят
На улицу, Во двор
Раздельных санузлов
2
О доме
Год постройки
2011
Этажность
10
Количество подъездов
2
Материал постройки
Кирпичный
Материал перекрытий
Ж/б плиты
Отопление
Центральное
Пассажирских лифтов
1
Грузовых лифтов
1
Парковка
Наземная
Расположение
Россия, Рязань, район Приокский, Октябрьская улица, 33
Ипотечный калькулятор
Заполните 1 анкету — получите предложения от десятков банков на специальных условиях
Программа ипотеки
Стоимость жилья, ₽
Первый взнос, ₽
Срок кредита
от 5.75%
Ставка
от 50 140 ₽
Платеж в месяц
Расчёт носит информационный характер и не является публичной офертой
Похожие объекты
Предложите свою цену
7 970 000 ₽
97 314 ₽/м²
















































































































