Продается 2-комн. квартира, 60.2 м²
Россия, Рязань, район Приокский, Дачная улица, 5
60.2 м²
Общая площадь
44.8 м²
Жилая площадь
6.9 м²
Площадь кухни
6 из 9
Этаж
Описание
Адрес: Россия, Рязань, район Приокский, Дачная улица, 5.
Общая информация:
Год постройки: 1971.
Материал постройки: кирпичный.
Этажность: 9 этажей
Комнатность: 2 комнаты.
Этаж: 6.
Комнаты изолированы.
Окна выходят на улицу и во двор.
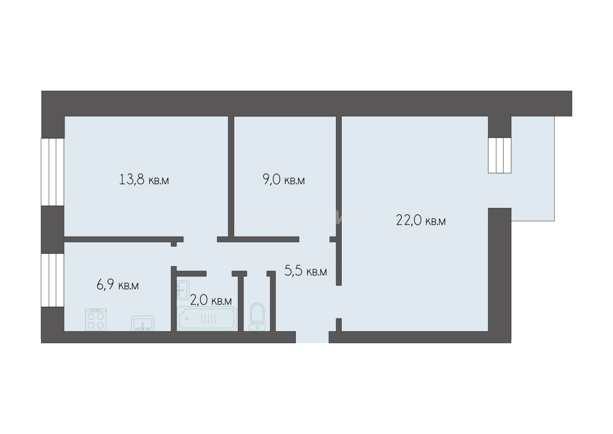
Общая площадь: 60,2 кв. м.
Жилая площадь: 44,8 кв. м.
Площадь кухни: 6,9 кв. м.
Площадь комнат: 13,8 + 22 + ( 9 кв. м. гардеробная)
Высота потолков: 2,5 м.
Состояние квартиры:
Ремонт: косметический.
Количество раздельных санузлов: 1.
Количество балконов: 1.
Квартира предлагается по одной из самых привлекательных цен на рынке.
Удобное расположение: квартира находится в районе с отличной транспортной доступностью.
Общая площадь квартиры составляет 60,2 кв. м,
3 Изолированные комнаты 22 и 14 кв.м., еще одна в 9 кв.м. - отличный вариант для оборудования кабинета, гардеробной, мастерской. Вообщем, что душа пожелает.
Инфраструктура в районе со всем необходимым для комфортной жизни — школа № 40 во дворе, лицей №52 - 400 метров, детские сады, поликлиника и больница №5, Дом культуры Приокский, огромный ухоженный парк, остановка обественного транспорта - в 100 метров, спортивные комплексы, бассейны, секции. Магазины, рынок, аптеки, пункты выдачи товаров - все рядом, очень удобно.
Для кого эта квартира:
Семьи с детьми оценят близость к образовательным учреждениям и паркам.
Пары без детей найдут здесь уют и возможность для личного пространства.
Пожилые пары оценят удобство подъезда и наличие всех необходимых объектов инфраструктуры.
Инвесторы увидят потенциал в выгодной цене и ликвидности объекта.
Показ в удобное время! Звоните!
Мы гарантируем безопасную сделку и юридическую поддержку нашим клиентам. Поможем одобрить ипотеку с сниженной ставкой.
О квартире
Общая площадь
60.2 м²
Жилая площадь
44.8 м²
Площадь кухни
6.9 м²
Площадь комнат
22,8+22 м²
Высота потолков
2.5 м
Подъезд
1
Этаж
6
Расположение квартиры
угловая
Окна выходят
На улицу, Во двор
Раздельных санузлов
1
О доме
Год постройки
1971
Этажность
9
Количество подъездов
2
Материал постройки
Кирпичный
Материал перекрытий
Ж/б плиты
Отопление
Центральное
Пассажирских лифтов
2
Парковка
Наземная
Расположение
Россия, Рязань, район Приокский, Дачная улица, 5
Ипотечный калькулятор
Заполните 1 анкету — получите предложения от десятков банков на специальных условиях
Программа ипотеки
Стоимость жилья, ₽
Первый взнос, ₽
Срок кредита
от 5.75%
Ставка
от 21 956 ₽
Платеж в месяц
Расчёт носит информационный характер и не является публичной офертой
Предложите свою цену
3 490 000 ₽
57 973 ₽/м²



























































































































