Свободного назначения · 143.4 pм²
Россия, Рязань, Московский район, улица Костычева, 9
143.4 м²
Общая площадь
Отдельный
Вход в помещение
Свободный
Доступ в помещение
1 из 9
Этаж
Описание
Расположено по адресу: ул. Костычева,д. 9.
Активный пешеходный трафик.
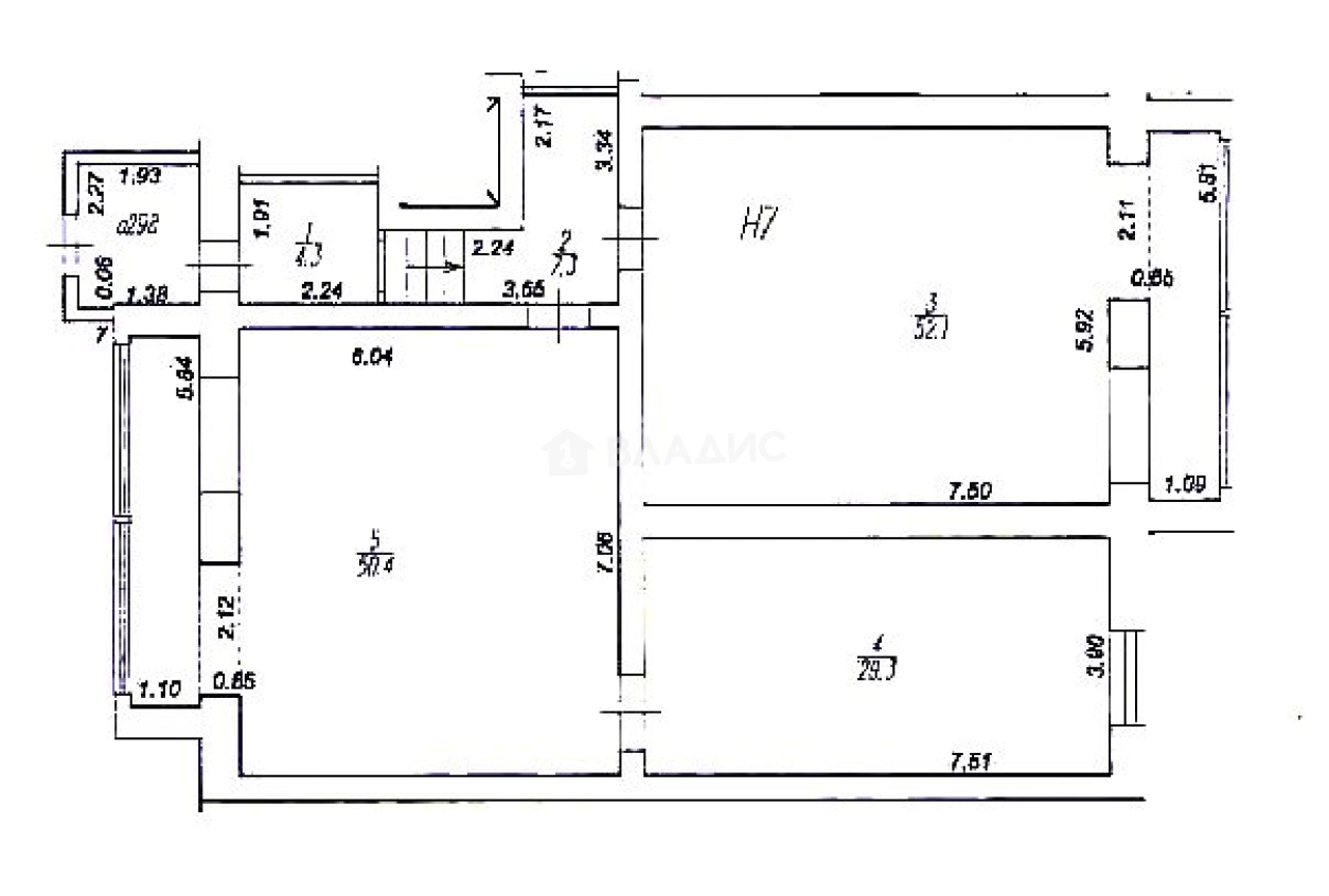
Общая площадь 143,4 кв.м.
Ремонт новый, под обучающий центр, отдельный вход, большая часть помещения имеет свободную планировку, высота потолка 3 м, сан. узел, есть все коммуникации: эл-во 10 кВт, сан. узел, автономное отопление, пожарная и охранная сигнализации, интернет, видеонаблюдение, кондиционер. На фасаде выделено значительное место под наружную рекламу. В настоящее время работает.
Свободный подъезд и парковка машин рядом с помещением. В доме расположено 13 действующих организаций среди них "Красное Белое", "Wildberries", магазин "Белорусские продукты " и другие. Рядом остановка общественного транспорта, Поликлиника №6, РГСХУ, Россельхозбанк.
Возможные форматы: обучающий центр, мед. центр, магазин, офис.
Об объекте
Общая площадь
143.4 м²
Этаж
1
Электрическая мощность
10 кВт
Раздельных санузлов
1
Ремонт
Косметический
Вход в помещение
Отдельный
Доступ в помещение
Свободный
Удобства
Интернет
Кондиционер
Охрана
Пожарная сигнализация
О здании
Тип коммерции
Многоквартирный дом
Год постройки
2005
Материал постройки
Кирпичный
Отопление
Своя котельная
Этажей в доме
9
Пассажирских лифтов
1
Парковка
Наземная
Расположение
Россия, Рязань, Московский район, улица Костычева, 9
Ипотечный калькулятор
Заполните 1 анкету — получите предложения от десятков банков на специальных условиях
Программа ипотеки
Стоимость жилья, ₽
Первый взнос, ₽
Срок кредита
от 5.75%
Ставка
от 50 329 ₽
Платеж в месяц
Расчёт носит информационный характер и не является публичной офертой
Предложите свою цену
8 000 000 ₽
55 788 ₽/м²







