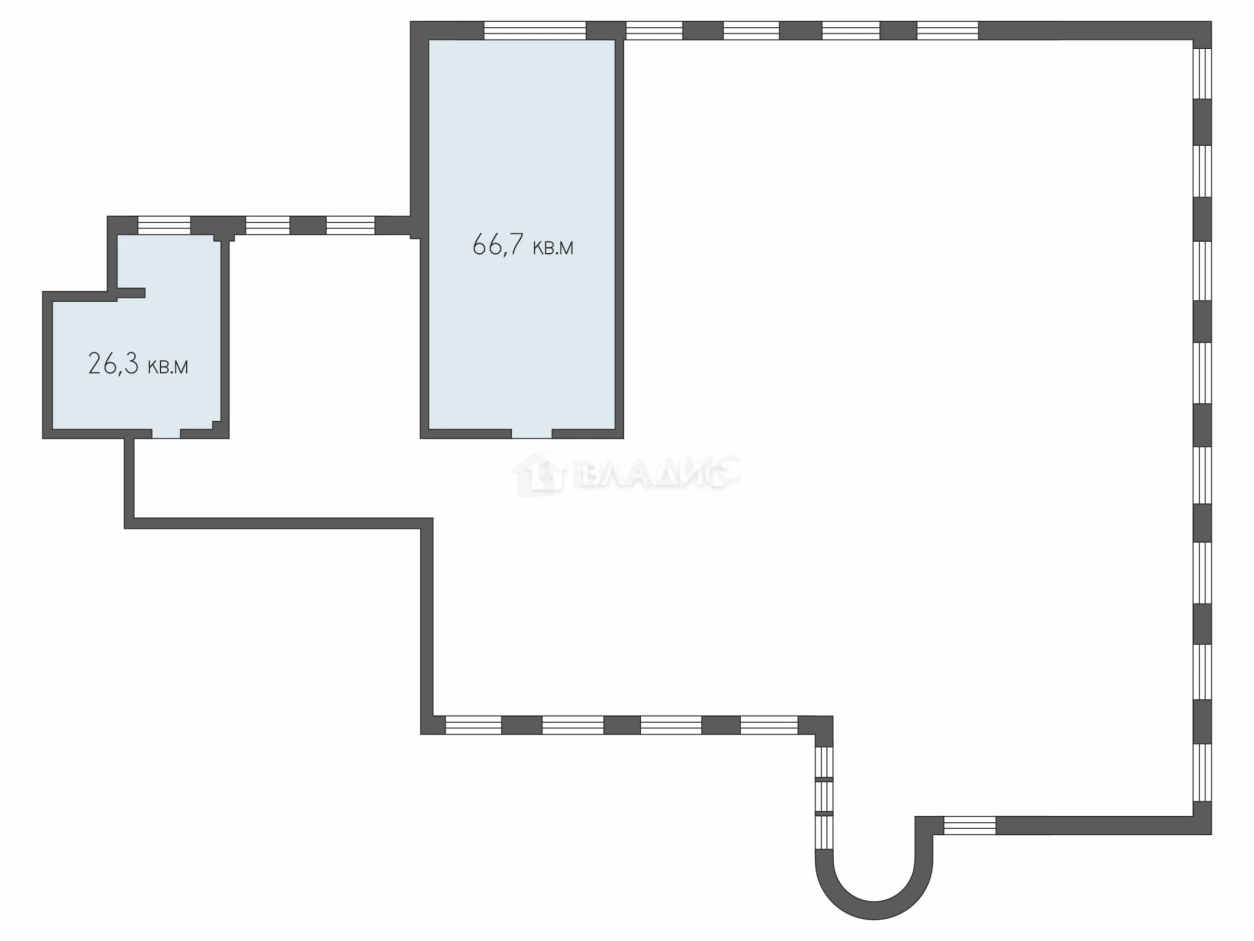
Сдается Недвижимость Свободного Назначения, 66.7 м²
Россия, Рязань, Вишнёвая улица, 21к6
66.7 м²
Общая площадь
Отдельный
Вход в помещение
Свободный
Доступ в помещение
2 из 2
Этаж
Описание
Преимущества:
Удобное расположение: в шаговой доступности фитнес-центр и медицинский центр, что создаст комфортные условия для вас и ваших сотрудников.
Коммунальные услуги оплачиваются отдельно.
Мы предоставляем каникулы для заезда, чтобы вы могли без спешки обустроить новое рабочее пространство.
Об объекте
Общая площадь
66.7 м²
Этаж
2
Высота потолков
2.7 м
Электрическая мощность
5 кВт
Ремонт
Старый ремонт
Вход в помещение
Отдельный, Общий
Доступ в помещение
Свободный
Удобства
Без оборудования
Условия аренды
Коммунальные платежи
Включены
Минимальный срок аренды
Не указан
Счётчики
Отдельно
О здании
Тип коммерции
Отдельное здание
Год постройки
2013
Материал постройки
Кирпичный
Отопление
Центральное
Этажей в доме
2
Парковка
Наземная
Расположение
Россия, Рязань, Вишнёвая улица, 21к6
6 600 ₽/м² в год
Комиссия
Без комиссии
Залог
1 ₽
Налог
УСН
36 685 ₽/мес.





