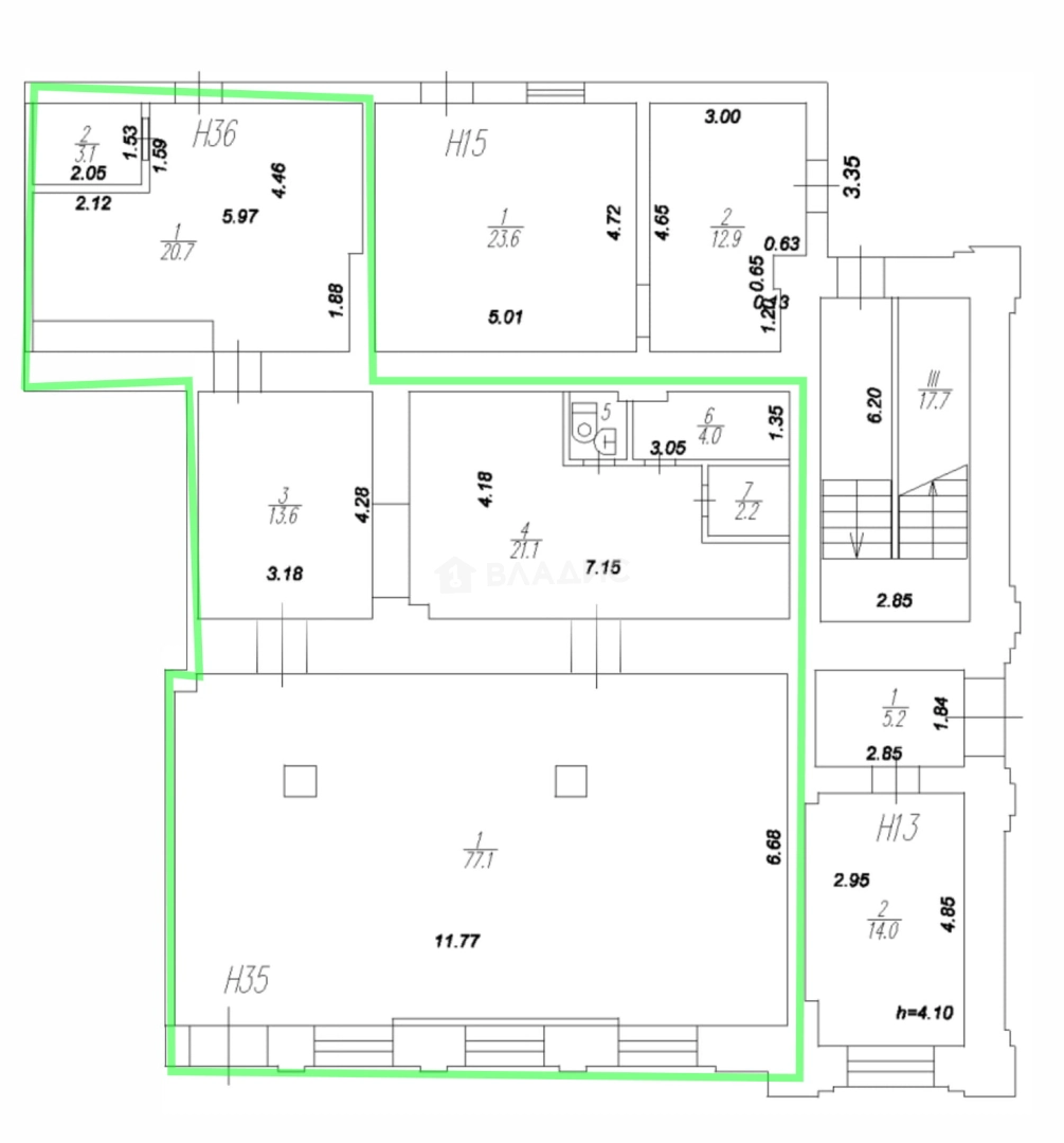
Сдается Недвижимость Свободного Назначения, 144 м²
Россия, Рязань, Первомайский проспект, 56
144 м²
Общая площадь
Отдельный
Вход в помещение
Свободный
Доступ в помещение
1 из 5
Этаж
Описание
Первая линия, витражные окна, высота потолка 3,5 м.
Помещение в нежилом здании! Два входа, разгрузка. За зданием есть парковочная зона.
Рядом остановка общественного транспорта, Первомайский рынок, Амакс Конгресс-отель.аренда коммерческого помещения свободного назначения в Рязани!
Это помещение идеально подойдёт для различных видов бизнеса, благодаря своей универсальности и просторной планировке.
Мы гарантируем безопасную сделку и юридическую поддержку нашим клиентам.
Запишитесь на просмотр прямо сейчас, чтобы не упустить возможность арендовать это прекрасное коммерческое помещение!
Об объекте
Общая площадь
144 м²
Этаж
1
Электрическая мощность
15 кВт
Раздельных санузлов
1
Ремонт
Косметический
Вход в помещение
Отдельный
Доступ в помещение
Свободный
Удобства
Интернет
Кондиционер
Условия аренды
Коммунальные платежи
Включены
Минимальный срок аренды
Не указан
Счётчики
Отдельно
О здании
Тип коммерции
Street retail
Год постройки
1960
Материал постройки
Кирпичный
Отопление
Своя котельная
Этажей в доме
5
Расположение
Россия, Рязань, Первомайский проспект, 56
20 832 ₽/м² в год
Комиссия
Без комиссии
Залог
330 000 ₽
Налог
УСН
250 000 ₽/мес.



