ЖК «Шереметьевский квартал» в Рязанской области
Россия, Рязанский район, Дядьковское сельское поселение, село Дядьково, жилой комплекс Шереметьевский Квартал
4 кв. 2020 - 1 кв. 2025
Срок сдачи
1 корпус
Количество корпусов
Описание
Соседство с окскими лугами открывает безграничные возможности для активного отдыха: семейные пикники в выходные, неспешные прогулки в тени деревьев и занятие спортом на свежем воздухе.
И конечно, жилой комплекс идеален для молодых семей.
На территории есть новая школа, детский сад, благоустроенные площадки для игр и спорта.
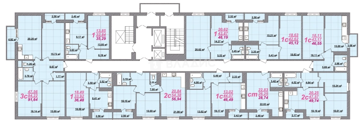
Корпус 16 (8А)
Материал постройки: Кирпично-монолитный, Монолитный
Этажей в доме: 19
Материал перекрытий: Ж/б плиты
Парковка: Наземная
Расположение
Россия, Рязанский район, Дядьковское сельское поселение, село Дядьково, жилой комплекс Шереметьевский Квартал
Ипотечный калькулятор
Заполните 1 анкету — получите предложения от десятков банков на специальных условиях
Программа ипотеки
Стоимость жилья, ₽
Первый взнос, ₽
Срок кредита
от 5.75%
Ставка
от 15 351 ₽
Платеж в месяц
Расчёт носит информационный характер и не является публичной офертой
Другие ЖК рядом












